2008-04-02 16:28 【大 中 小】【打印】【我要纠错】









所 在 地:德国 -> ->
设 计 师:彼得·埃森曼
图片介绍:
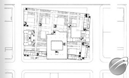
Design/Completion 1981/1985
Berlin, Germany
Hauert Noack, GmbH & Company
50,000 square feet
Concrete frame
Stucco and metal panels
This apartment block is intended not only to help meet the pressing need for housing in Berlin, but also to commemorate the events that have taken place around the site.
This project is designed for social (low-income) housing on a corner site in Berlin, located on the block adjacent to the former Berlin Wall and Checkpoint Charlie. It is the first phase of a two- or three-phase project which will eventually cover the entire block.
The design, in addition to meeting the very restrictive functional and financial requirements for social housing in Berlin, responds in a unique way to two general architectural problems: context and symbolism.
1、凡本网注明“来源:建设工程教育网”的所有作品,版权均属建设工程教育网所有,未经本网授权不得转载、链接、转贴或以其他方式使用;已经本网授权的,应在授权范围内使用,且必须注明“来源:建设工程教育网”。违反上述声明者,本网将追究其法律责任。
2、本网部分资料为网上搜集转载,均尽力标明作者和出处。对于本网刊载作品涉及版权等问题的,请作者与本网站联系,本网站核实确认后会尽快予以处理。
本网转载之作品,并不意味着认同该作品的观点或真实性。如其他媒体、网站或个人转载使用,请与著作权人联系,并自负法律责任。
3、本网站欢迎积极投稿。