2002年度造价工程师执业资格考试工程造价案例分析试题及参考答案(三)
试题三:(30分)
本试题分三个专业(Ⅰ土建工程、Ⅱ工业管道安装工程、Ⅲ电气安装工程),请任选其中一题作答。若选多题,按所答的第一题(卷面顺序)计分。
Ⅰ。土建工程
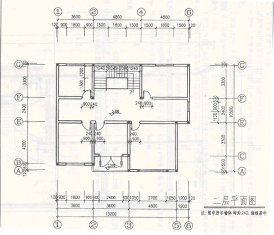
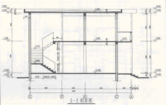
某砖混结构二层别墅的一、二层平面和剖面如图所示。
问题:
依据《全国统一建筑工程预算工程量计算规则》,计算答题纸表3.1“土建工程量计算表”中分项工程工程量,并将计量单位、工程量及其计算过程填入该表的相应栏目中。
注:计算结果保留两位小数。



Ⅱ。工业管道安装工程
某氮气加压站工业管道工程系统如图所示:
图中工业管道系统工作压力PN=0.75MPa.图中标注水平尺寸以毫米计,标高以米计。
管道:273×6管采用无缝钢管;325×8管采用成卷10#钢板,现场制作钢板卷管,安装每10m钢板卷管的主材消耗量为9.88m,每米重62.54kg;每制作1t钢板卷管钢板的消耗量为1.05t.
管件:所有三通为现场挖眼连接:弯头全部采用成品冲压弯头,273×6弯头弯曲半径R=400mm,325×8弯头弯曲半径R=500mm.电动阀门长度按500mm计。
所有法兰采用平焊法兰,阀门采用平焊法兰连接。
管道系统安装完毕作水压试验。无缝钢管共有16道焊口,设计要求50%进行X光射线无损探伤,胶片规格为300×80mm.
所有管道外壁除锈后均进行一般刷油处理。325×8的管道需绝热,绝热层厚δ=50mm,外缠玻璃纤维布作保护层。
问题:
依据《全国统一安装工程预算工程量计算规则》,计算答题纸表3.2“管道安装工程量计算表”中分项工程工程量,并将计量单位、工程量及其计算过程填入该表的相应栏目中。
注:计算结果除计量单位为“t”、“m3”的项目保留三位小数外,其它均保留两位小数。

Ⅲ。电气安装工程
某车间电气动力安装工程如图所示:
1.动力箱、照明箱均为定型配电箱,嵌墙暗装,箱底标高为+1.4m.木制配电板现场制作后挂墙明装,底边标高为+1.5m,配电板上权装置一铁壳开关。
2.所有电缆、导线均穿钢保护管敷设。保护管除N6为沿墙、柱明配外,其他均为暗配,埋地保护管标高为-0.2m.N6自配电板上部引至滑触线的电源配管,在②柱标高+6.0m处,接一长度为0.5m的弯管。
3.两设备基础面标高+0.3m,至设备电机处的配管管口高出基础面0.2m,至排烟装置处的管口标高为+6.0m.均连接一根长0.8m同管径的金属软管。
4. 电缆计算预留长度时不计算电缆敷设驰度、波形变度和交叉的附加长度。连接各设备处电缆、导线的预留长度为1.0m,与滑独线接处预留长度为1.5m.电缆头户内干包式,其附加长度不计。
5. 滑触线支架(L50×50×5,每米重3.77kg)采用螺栓固定;滑独线(L40×40×4,每米重2.422kg)两端设置指示灯。
6. 图中管路旁括号内数字表示该管的平面长度。
问题:
依据《本国统一安装工程预算工程量计算规则》,计算答题纸表3.3“电气安装工程量计算表”中分项工程工程量,并将计量单位、工程量及计算过程填入该表的相应栏目中。
注:计算结果保留两位小数。

试题三(30分)
Ⅰ、土建工程
一、答案及评分标准
表3.1
土建工程量计算表
序号 分项工程名称 计量单位 工程量 计算过程
1 建筑面积 m2 265.07(0.5分) 一层:10.14×3.84+9.24×3.36+10.74×5.04+5.94×1.2=131.24
二层:131.24
阳台1/2×(3.36×1.5+0.6×0.24)=2.59
2 外墙外边线总长 m 50.16(0.5分) 10.14+13.44+(10.74+1.2)+(12.24+0.9+1.5)=50.16
3 外墙中心线总长 m 49.20(0.5分) 50.16-4×0.24=49.2
4 内墙净长线总长 m 54.18(0.5分) 一层:3.36+3.36+4.56+5.7+1.5+3.3=21.78
二层:3.36×3+4.56×2+3.3×4=32.4
5 外脚手架 m2 (0.5分) 326.04(0.5分) 50.16×6.50=326.04
6 内脚手架 m2 (0.5分) 163.66(0.5分) 21.78×3.2+32.4×2.9=163.66
7 柱脚手架 m2 (0.5分) 14.47(0.5分) (×3.14×0.125+3.6)×3.3=14.47
8 室内地面混凝土垫层 m3(0.5分) 9.14(0.5分) (131.24-49.2×0.24-21.78×0.24×0.08=9.14
9 水泥沙浆楼地面 m2 (0.5分) 214.91(0.5分) 一层:131.24-49.2×0.24-21.78×0.24=114.20
二层:131.24-49.25×0.24-32.4×0.24-4.56×2.40=100.71
10 水泥沙浆楼梯面层 m2 (0.5分) 8.42(0.5分) 1.20×4.56+1.24×1.30+1.24×1.08=8.42
11 一层F轴踢脚线 m(0.5分) 9.36(0.5分) 4.08-0.24+4.80=9.36
12 散水原土打夯 m2 (0.5分) 25.20(0.5分) 0.6×[2×(13.2+0.24+10.5+0.24)-0.6+0.6×4-3.6s
13 台阶三合土 m3(0.5分) 0.34(0.5分) (3.36+0.6×2+0.6)×0.6+(3.36+0.3)×0.3=4.2
14 水泥砂浆台阶抹面 m2(0.5分) 4.20(0.5分) (3.36+0.6×2+0.6)×0.6+(3.36+0.3)×0.3=4.2
15 坡道三七灰土 m3(0.5分) 2.27(0.5分) 3.6×2.1×0.30=2.27
16 坡道混凝土垫层 m3(0.5分) 0.60(0.5分) 3.6×2.1×0.08=0.60
17 混凝土散水一次抹光 m2(0.5分) 25.20(0.5分) 25.20
二、评分说明
1、表中“计算过程”合并计算且正确的,合并给分。
2、表中序号“1-4”中计量单位未标或错标的,每处少给0.5分。
3、表中序号“5-17”中计量单位栏填写《全国统一建筑工程基础定额》定额计量单位的,对应定额单位工程量计算正确的,两栏都给分;仅填定额计量单位,没计算工程量或错计算工程量的,计算单位也给分。
Ⅱ、工业管道安装工程
一、答案及评分标准
表3.2
管道工程量计算表
序号 工程名称及其规格 计量单位 工程量 计 算 过 程
1 无缝钢管安装φ273×6 m(0.5分) 38.4(0.5分) (1.0+4.5-0.8)×2+6+8+12+(4.5-1.5)
2 无缝钢管安装φ108×6 m 0.5 5-4.5
3 钢板卷管安装φ325×8 m(0.5分) 16.7(0.5分) (1.2+1+0.6)×2+0.6+6.4.5
4 管件安装DN300 个 4 弯头2个 三通2个
5 管件安装DN250 个 6 弯头5个 三通1个
6 电动阀门DN300 个 1 1
7 法兰阀门DN250 个 3 碟阀2个 止回阀1个
8 安全阀DN100 个 1 1
9 法兰DN300 副 1 1
10 法兰DN300 片 3 1+1+1
11 法兰DN250 副 3 1+1+1
12 法兰DN250 片 3 1+1+1
13 法兰DN100 片 1 1
14 钢板卷管制作δ325×8 t(0.5分) 1.032(0.5分) 16.7×9.88÷10×0.06254
15 钢板开卷平直=8mm t(0.5分) 1.083(0.5分) 1.032×1.05
16 防水套管制作DN300 个 1 1
16′ 防水套管制安装DN300 个 1 1
17 X光无损探伤拍片 张(0.5分) 40(0.5分) 每个焊口拍片数325×÷(300-2×25)=4.08,应取5
共拍片数:16×50%×5=40
18 管道刷油 m2(0.5分) 50.13(0.5分) (0.273×π×38.4)+(0.325×π×16.7)+(0.108×π×0.5)
19 管道绝热 m3(0.5分) 1.020(0.5分) 16.7×π×(0.325+1.033×0.05)×1.033×0.05
20 管道绝热保护层 m2(0.5分) 22.98(0.5分) 16.7×π×(0.325=2.1×0.05+0.0082)
二、评分说明
表中“计算过程”栏,合并计算且正确的应合并给分。
表中若按定额计量单位计算,也视为正确。
表中“计量单位”、“工程量”、“计算过程”三处综合计分时,每错一处少给0.5分,每项最低为0分。
表中第16、16′项,合并列项给0.5分。

扫码了解并领取一造资讯及资料













