2006年造价工程师案例分析试题
试题一(20分)
某工业项目计算期为l0年,建设期2年,第3年投产,第4年开始达到设计生产能力。建设投资2800万元(不含建设期贷款利息),第l年投入1000万元,第2年投入1800万元。投资方自有资金2500万元,根据筹资情况建设期分两年各投入l000万元,余下的500万元在投产年初作为流动资金投入。建设投资不足部分向银行贷款,贷款年利率为6%,从第3年起,以年初的本息和为基准开始还贷,每年付清利息,并分5年等额还本。
该项目固定资产投资总额中,预计85%形成固定资产,15%形成无形资产。固定资产综合折旧年限为10年,采用直线法折旧,固定资产残值率为5%,无形资产按5年平均摊销。
该项目计算期第3年的经营成本为1500万元、第4年至第10年的经营成本为1800万元。设计生产能力为50万件,销售价格(不含税)54元/件。产品固定成本占年总成本的40%。
问题
1.列式计算固定资产年折旧额及无形资产摊销费,并按答题纸表l.1所列项目填写相应数字。
2.列式计算计算期末固定资产余值。
3.列式计算计算期第3年、第4年、第8年的总成本费用。
4.以计算期第4年的数据为依据,列式计算年产量盈亏平衡点,并据此进行盈亏平衡分析。
(除问题4计算结果保留两位小数外,其余各题计算结果均保留三位小数。)
解析:
问题1
固定资产年折旧额=[(2800+24)×85%×(1-5%)]÷10=228.038(万元)
无形资产摊销费=(2800+24)×15%÷5=84.720(万元)
表1.1 项目建设投资还本付息及固定资产折旧、摊销费用表

问题2
计算期末的固定资产余值为:
(2800+24)×85%一228.038×(10-2)=576.096(万元)
或:228.038×(10一8)+2824×85%×5%=576.096(万元)
问题3
第3年总成本费用:1500+228.038+84.720+49.440=1862.198万元第4年总成本费用:1800+228.038+84.720+39.552=2152.310(万元)
第8年总成本费用:1800+228.038=2028.038(万元)
问题4
年产量盈亏平衡点:
BEP(Q)=2152.310×0.4÷(54-2152.310×0.6÷50)=30.56(万件)
结果表明,当项目产量小于30.56万件时,项目开始亏损;当项目产量大于30.56万件时,项目开始盈利。
试题二(20分)
某咨询公司受业主委托,对某设计院提出的8000m2工程量的屋面工程的A、B、C三个设计方案进行评价。该工业厂房的设计使用年限为40年。咨询公司评价方案中设置功能实用性(F1)、经济合理性(F2)、结构可靠性(F3)、外形美观性(F4)、与环境协调性(F5)等五项评价指标。该五项评价指标的重要程度依次为:Fl、F3、F2、F5、F4,各方案的每项评价指标得分见表2.1.各方案有关经济数据见表2.2.基准折现率为6%,资金时间价值系数见表2.3.
表2.1 各方案评价指标得分表

表2.2 各方案有关经济数据汇总表
| 方案 | A | B | C |
| 含税全费用价格(元/m2) | 65 | 80 | 115 |
| 年度维护费用(万元) | 1.40 | 1.85 | 2.70 |
| 大修周期(年) | 5 | 10 | 15 |
| 每次大修费(万元) | 32 | 44 | 60 |
表2.3 资金时间价值系数表
| n | 5 | 10 | 15 | 20 | 25 | 30 | 35 | 40 |
| (P/F,6%,n) | 0.7474 | 0.5584 | 0.4173 | 0.3118 | 0.2330 | 0.1741 | 0.1301 | 0.0972 |
| (A/P。6%,n | 0.2374 | 0.1359 | 0.1030 | 0.0872 | 0.0782 | 0.0726 | 0.0690 | 0.0665 |
问题
1.用0-1评分法确定各项评价指标的权重并把计算结果填入答题纸表2.4.
2.列式计算A、B、C三个方案的加权综合得分,并选择最优方案。
3.计算该工程各方案的工程总造价和全寿命周期年度费用,从中选择最经济的方案(注:不考虑建设期差异的影响,每次大修给业主带来不便的损失为1万元,各方案均无残值)。
(问题l的计算结果保留三位小数,其他计算结果保留两位小数。)
解析:
问题1
表2.4 各评价指标权重计算表
| F1 | F2 | F3 | F4 | F5 | 得分 | 修正得分 | 权重 | |
| F1 | × | 1 | 1 | 1 | 1 | 4 | 5 | 0.333 |
| F2 | 0 | × | 0 | 1 | 1 | 2 | 3 | 0.200 |
| F3 | 0 | 1 | × | 1 | 1 | 3 | 4 | 0.267 |
| F4 | 0 | 0 | 0 | × | 0 | 0 | 1 | 0.067 |
| F5 | 0 | 0 | 0 | 1 | × | 1 | 2 | 0.133 |
| 合计 | 10 | 15 | 1.000 | |||||
问题2
A方案综合得分:9×0.333+8×0.200+10×0.267+7×0.067+8×0.133=8.80(分)
B方案综合得分:8×0.333+10×0.200+9×0.267+9×0.067+10×0.133=9.00(分)
C方案综合得分:10×0.333+9×0.200+8×0.267+9×0.067+8×0.133=8.93(分)
所以,B方案为最优方案。
问题3
(1)各方案的工程总造价:
A方案:65×8000=520 000(元)=52(万元)
B方案:80×8000=640 000(元)=64(万元)
C方案:115×8000=920 000(元)=92(万元)
(2)各方案全寿命周期年度费用:
A方案:1.4+52(A/P,6%,40)+(32+1)[(P/F,6%,5)+(P/F,6%,l0)+(P/F,6%,l5)+(P/F,6%,20)+(P/F,6%,25)+(P/F,6%,30)+(P/F,6%,35)](A/P,6%,40)=1.4+52×0.0665+33×(0.7474+0.5584+0.4173+0.3118+0.2330+0.1741 +0.1301)×0.0665=1.4+3.458+5.644=10.52(万元)
B方案:l.85+64(A/P,6%,40)+(44+1)[(P/F,6%,l0)+(P/F,6%,20)+(P/F,6%,30)](A/P,6%,40)=1.85+64×0.0665+45×(0.5584+0.3118+0.1741)×0.0665=1.85+4.256+3.125=9.23(万元)
C方案:2.70+92(A/P,6%,40)+(60+1)[(P/F,6%,l5)+(P/F,6%,30)](A/P,6%,40)=2.70+92×0.0665+61×(0.4173+0.1741)×0.0665=2.70+6.118+2.399= 11.22(万元)
所以,B方案为最经济方案(或最优方案)。
试题三(20分)
某总承包企业拟开拓国内某大城市工程承包市场。经调查该市目前有A、B两个BOT项目将要招标。两个项目建成后经营期限均为15年。
为了顺利进行投标,企业经营部将在该市投标全过程按先后顺序分解为以下几项工作:(1)投标申请;(2)接受资格审查;(3)领取招标文件;(4)参加投标预备会;(5)参加现场踏勘;(6)编制投标文件;(7)编制项目可行性研究论证报告;(8)投送投标文件;(9)投标文件内容说明与陈述;(10)参加开标会议;(11)签订合同。
经进一步调研,收集和整理出A、B两个项目投资与收益数据,见表3.1.
表3. 1 A、B项目投资与收益数据表
| 项目名称 | 初始投资(万元) | 运营期每年收益(万元) | ||
| 1~5年 | 6~10年 | 11~15年 | ||
| A项目 | 10000 | 2000 | 2500 | 3000 |
| B项目 | 7000 | 1500 | 2000 | 2500 |
基准折现率为6%,资金时间价值系数见表3.2.
| n | 5 | 10 | 15 |
| (P/F,6%,n) | 0.7474 | 0.5584 | 0.4173 |
| (P/A,6%,n) | 4.2123 | 7.3601 | 9.7122 |
问题
1.经营部拟定的各项投标工作的先后顺序有何不妥?
2.不考虑建设期的影响,分别列式计算A、B两个项目总收益的净现值。
3.据估计:投A项目中标概率为0.7,不中标费用损失80万元;投B项目中标概率为0.65,不中标费用损失l00万元。若投B项目中标并建成经营5年后,可以自行决定是否扩建,如果扩建,其扩建投资4000万元,扩建后B项目每年运营收益增加1000万元。
按以下步骤求解该问题:
(1)计算B项目扩建后总收益的净现值;
(2)将各方案总收益净现值和不中标费用损失作为损益值,绘制投标决策树;
(3)判断B项目在5年后是否扩建?计算各机会点期望值,并做出投标决策。
(计算结果均保留二位小数。)
解析:
问题l
不妥之处有:
(1)参加投标预备会不应在参加现场踏勘之前;
(2)编制项目可行性研究论证报告不应在编制投标文件之后;
(3)投标文件内容说明与陈述不应在参加开标会议之前。
问题2
各项目总收益净现值计算:
A项目:PVA=一10 000+2000(P/A,6%,5)+2500(P/A,6%,5)(P/F,6%,5)+ 3000(P/A,6%,5)(P/F,6%,l0)=-10 000+2000×4.2123+2500×4.2123×0.7474+ 3000×4.2123×0.5584=-10000+8424.60+7870.68+7056.44=13351.72(万元)
B项目PVB=-7000+1500(P/A,6%,5)+2000(P/A,6%,5)(P/F,6%,5)+2500(P/A,6%,5)(P/F,6%,l0)=-7000+1500×4.2123+2000×4.2123×0.7474+2500×4.2123×0.5584=-7000+6318.45+6296.55+5880.37=11495.37(万元)
问题3
(1)B项目扩建后总收益净现值
PVB=11495.37+[1000(P/A,6%,l0)一4000](P/F,6%,5)=11495.37 4-[1000×7.3601一4000]×0.7474=11495.37+3360.10×0.7474=14006.71(万元)
(2)绘制决策树

(3)5年后应该扩建。
计算各机会点期望值并做出投标决策:
点①:0.7×13351.72+0.3×(-80)=9322.20(万元)
点②:0.65×14006.71+0.35×(-100)=9069.36(万元)
所以,应投A项目。
试题四(20分)
某施工单位与建设单位按《建设工程施工合同(示范文本)》签订了固定总价施工承包合同,合同工期390天,合同总价5000万元。合同中约定按建标[2003]206号文综合单价法计价程序计价,其中间接费费率为20%,规费费率为5%,取费基数为人工费与机械费之和。
施工前施工单位向工程师提交了施工组织设计和施工进度计划(图4.1)。

图4.1施工进度计划(单位:天)
该工程在施工过程中出现了如下事件:
(1)因地质勘探报告不详,出现图纸中未标明的地下障碍物,处理该障碍物导致工作A持续时间延长l0天,增加人工费2万元、材料费4万元、机械费3万元。
(2)基坑开挖时因边坡支撑失稳坍塌,造成工作占持续时间延长l5天,增加人工费l万元、材料费l万元、机械费2万元。
(3)因不可抗力而引起施工单位的供电设施发生火灾,使工作C持续时间延长10天,增加人工费1.5万元、其他损失费5万元。
(4)结构施工阶段因建设单位提出工程变更,导致施工单位增加人工费4万元、材料费6万元、机械费5万元,工作E持续时间延长30天。
(5)因施工期间钢材涨价而增加材料费7万元。
针对上述事件,施工单位按程序提出了工期索赔和费用索赔。
问题
1.按照图4.1的施工进度计划,确定该工程的关键线路和计算工期,并说明按此计划该工程是否能按合同工期要求完工?
2.对于施工过程中发生的事件,施工单位是否可以获得工期和费用补偿?分别说明理由。
3.施工单位可以获得的工期补偿是多少天?说明理由。
4.施工单位租赁土方施工机械用于工作A、B,日租金为1500元/天,则施工单位可以得到的土方租赁机械的租金补偿费用是多少?为什么?
5.施工单位可得到的企业管理费补偿是多少?
解析:
问题1
采用标号法计算如下:

关键路线:①→③→⑤→⑥,计算工期为390天,按此计划该工程可以按合同工期要求完工。
问题2
事件(1):不能获得工期补偿,因为工作A的延期没有超过其总时差;可以获得费用补偿,因为图纸未标明的地下障碍物属于建设单位风险的范畴。
事件(2):不能获得工期和费用补偿,因为基坑边坡支撑失稳坍塌属于施工单位施工方案有误,应由承包商承担该风险。
事件(3):能获得工期补偿,应由建设单位承担不可抗力的工期风险;不能获得费用补偿,因不可抗力发生的费用应由双方分别承担各自的费用损失。
事件(4):能获得工期和费用补偿,因为建设单位工程变更属建设单位的责任。
事件(5):不能获得费用补偿,因该工程是固定总价合同,物价上涨风险应由施工单位承担。
问题3
施工单位可获得的工期延期补偿为30天,因为考虑建设单位应承担责任或风险的事件:(1)工作A延长l0天;(3)工作C延长l0天;(4)工作E延长30天,新的计算工期为420天,420-390=30(天)。
问题4
施工单位应得到l0天的租金补偿,补偿费用为10天×1500元/天=1.5万元,因为工作A的延长导致该租赁机械在现场的滞留时间增加了l0天,工作B不予补偿。
问题5
施工单位可以得到的企业管理费用补偿计算如下:
20%一5%=15%(2+4+3+5)×15%=2.1(万元)。
试题五(20分)
某工程项目,建设单位通过公开招标方式确定某施工单位为中标人,双方签订了工程承包合同,合同工期3个月。
合同中有关工程价款及其支付的条款如下:
(1)分项工程清单中含有两个分项工程,工程量分别为甲项4500m3,乙项31 000m3,清单报价中,甲项综合单价为200元/m3,乙项综合单价为l2.93元/m3,乙项综合单价的单价分析表见表5.1.当某一分项工程实际工程量比清单工程量增加超出10%时,应调整单价,超出部分的单价调整系数为0.9;当某一分项工程实际工程量比清单工程量减少10%以上时,对该分项工程的全部工程量调整单价,单价调整系数为1.1.(2)措施项目清单共有7个项目,其中环境保护等3项措施费用4.5万元,这3项措施费用以分部分项工程量清单计价合计为基数进行结算。剩余的4项措施费用共计l6万元,一次性包死,不得调价。全部措施项目费在开工后的第1个月末和第2个月末按措施项目清单中的数额分两次平均支付,环境保护措施等3项费用调整部分在最后一个月结清,多退少补。
(3)其他项目清单中只包括招标人预留金5万元,实际施工中用于处理变更洽商,最后一个月结算。
(4)规费综合费率为4.89%,其取费基数为分部分项工程量清单计价合计、措施项目清单计价合计、其他项目清单计价合计之和;税金的税率为3.47%。
(5)工程预付款为签约合同价款的10%,在开工前支付,开工后的前两个月平均扣除。
(6)该项工程的质量保证金为签约合同价款的3%,自第l个月起,从承包商的进度款中,按3%的比例扣留。
合同工期内,承包商每月实际完成并经工程师签证确认的工程量如表5.2所示。
表5.1 (乙项工程)工程量清单综合单价分析表(部分) 单位:元/m3
|
直接费 |
人工费 |
0.54 |
10.89 | |
|
材料费 |
0 | |||
|
机械费 |
反铲挖掘机 |
1.83 | ||
|
履带式推土机 |
1.39 | |||
|
轮式装载机 |
1.50 | |||
|
自卸卡车 |
5.63 | |||
|
管理费 |
费率(%) |
12 | ||
|
金额 |
1.31 | |||
|
利润 |
利润率(%) |
6 | ||
|
金额 |
0.73 | |||
|
综合单价 |
12.93 | |||

1.该工程签约时的合同价款是多少万元?
2.该工程的预付款是多少万元?
3.该工程质量保证金是多少万元?
4.各月的分部分项工程量清单计价合计是多少万元?并对计算过程做必要的说明。
5.各月需支付的措施项目费是多少万元?
6.承包商第1个月应得的进度款是多少万元?
(计算结果均保留两位小数。)
解析:
问题1
该工程签约合同价款:
(4500×200+31000×12.93+45 000+160 000+50 000)×(1+4.89%)(1+3.47%)= 168.85(万元)
问题2
该工程预付款:168.85×10%=16.89(万元)
问题3
该工程质量保证金:168.85×3%=5.07(万元)
问题4
第1个月的分部分项工程量清单计价合计:(1600×200+8000×12.93)=42.34(万元)
第2个月的分部分项工程量清单计价合计:(1600×200+9030X 12.93)=43.64(万元)
截至第3个月未,甲分项工程累计完成工程量l600+1600+1000=4200m3,与清单工程量4500 m3相比,(4500-4200)/4500=6.67%<10%,应按原价结算;乙分项工程累计完成工程量25 000m3,与清单工程量31 000m3相比,(31 000-25 000)/31 000=19.35%>10%,按合同条款,乙分项工程的全部工程量应按调整后的单价计算,第3个月的分部分项工程量清单计价合计应为:
1000×200+25 000×12.93×1.1-(8000+9000) ×12.93=33.58(万元)
问题5
第1个月措施项目清单计价合计:(4.5+16)÷2=10.25(万元)
须支付措施费:10.25×1.0489×1.0347=11.12(万元)
第2个月须支付措施费:同第1个月,11.12万元环境保护等三项措施费费率为:45 000÷(4500×200+31 000 ×12.93)×100%=3.46%第3个月措施项目清单计价合计:(42.34+43.64+33.58)×3.46%-4.5= -0.36(万元)
须支付措施费:一0.36×1.0489×1.0347=-0.39(万元)
按合同多退少补,即应在第3个月末扣回多支付的0.39万元的措施费。
问题6
施工单位第1个月应得进度款为:
(42.34+10.25)×(1+4.89%)(1+3.47%) ×(1-3%)一l6.89÷2=46.92(万元)
试题六(40分)
本试题分三个专业(1.土建工程、Ⅱ.工业管道安装工程、Ⅲ.电气安装工程),请任选其中一题作答。若选作多题,按所答的第一题(卷面顺序)计分。
1.土建工程
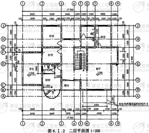
某别墅部分设计如图6.I所示。墙体除注明外均为240mm厚。坡屋面构造做法:钢筋混凝土屋面板表面清扫干净,素水泥浆一道,20mm厚l:3水泥砂浆找平,刷热防水膏,采用20mm厚1:3干硬性水泥砂浆防水保护层;25mm厚1:1:4水泥石灰砂浆铺瓦屋面。卧室地面构造做法:素土夯实,60mm厚C10混凝土垫层,20mm厚l:2水泥砂浆抹面压光。卧室按面构造做法:150mm现浇钢筋混凝土楼板,素水泥浆一道,20mm厚l:2水泥砂浆抹面压光。
问题
1.依据《建筑工程建筑面积计算规范}(GB/T50353——2005)的规定,计算别墅的建筑面积。将计算过程及计量单位、计算结果填入答题纸表6.I.1“建筑面积计算表”。

图6.I.1一层平面图1:100
注:弧形落地窗半径只=1500mm(为B轴外墙外边线到弧形窗边线的距离,弧形窗的厚度忽略不计)
2.依据《建设工程工程量清单计价规范》计算卧室(不含卫生问)楼面、地面工程量,计算坡屋面工程量。将计算过程及结果填入答题纸表6.I.2“分部分项工程量计算表”。
3.依据《建设工程工程量清单计价规范》编制卧室楼面、地面,坡屋面工程的分部分项工程量清单,填入答题纸表6.I.3“分部分项工程量清单表”(水泥砂浆楼地面的项目编码为020101001,瓦屋面的项目编码为010701001)。
4.依据《建设工程工程量清单计价规范》编制“单位工程费汇总表”。假设别墅部分项目的分部分项工程量清单计价合计207 822元,其中人工费41 560元;措施项目清单计价合计48 492元;其他项目清单计价合计l2 123元;规费以人工费为基数计取,费率为30%;税率为3.413%。将有关数据和相关内容填入答题纸表6.I.4“单位工程费汇总表”。
(计算结果均保留两位小数。)




解析:
问题1
表6.I.1 建筑面积计算表
| 序号 | 部位 | 计量单位 | 建筑面积 | 计算过程 |
| l |
一层 |
m2 | 172.66 |
3.6×6.24+3.84×11.94+3.14×1.52×(1/2)+3.36 ×7.74+5.94×11.94+1.2×3.24 |
| 2 | 二层 | m2 | 150.20 | 3.84×11.94+3.14×1.52×(1/2)+3.36×7.74+5.94×11.94+1.2×3.24 |
| 3 | 阳台 | m2 | 3.02 | 3.36×1.8×(1/2) |
| 4 | 雨篷 | m2 | 5.13 | (2.4—0.12)×4.5×1/2 |
| 合计 | m2 | 331.01 |

Ⅱ.管道安装工程
1.某总承包施工企业根据某安装工程的招标文件和施工方案决定按以下数据及要求进行投标报价:
该安装工程按设计文件计算出各分部分项工程工料机费用合计为6000万元,其中人工费占10%。
安装工程脚手架搭拆的工料机费用,按各分部分项工程人工费合计的8%计取,其中人工费占25%;安全防护、文明施工措施费用,按当地工程造价管理机构发布的规定计100万元,根据建设部建办[2005]89号《建筑工程安全防护、文明施工措施费用及使用管理规定》中“投标方安全防护、文明施工措施的报价,不得低于根据工程所在地工程造价管理机构测定费率计算所需费用总额的90%”的规定,业主要求按90%计;其他措施项目清单费用按l50万元计。
施工管理费、利润分别按人工费的60%、40%计。
按业主要求,总承包企业将占工程总量20%的部分专业工程发包给某专业承包企业,总承包服务费按分包专业工程各分部分项工程人工费合计的l5%计取。
规费按8万元计;税金按税率3.50%计。
2.其中某生产装置中部分工艺管道系统如图6.Ⅱ所示。
管道系统各分部分项工程量清单项目的统一编码见下表:
| 项目编码 | 项目名称 | 项目编码 | 项目名称 |
| 030602002 | 中压碳钢管道 | 030615001 | 管架制作安装 |
| 030605001 | 中压碳钢管件 | 030616003 | 焊缝X光射线探伤 |
| 030608002 | 中压法兰阀门 | 030616005 | 焊缝超声波探伤 |
| 0306l1003 | 中压碳钢对焊法兰 |
问题
1.按照《建设工程工程量清单计价规范》和建标[2003]206号文《建筑安装工程费用项目组成》的规定,计算出总承包企业对该单项工程的(含分包专业工程)投标报价。将各项费用的计算结果填入答题纸表6.Ⅱ。1“单项工程费用汇总表”中,其计算过程写在表6.Ⅱ.1“单项工程费用汇总表”的下面。(计算结果均保留整数)
2.根据《建设工程工程量清单计价规范》的规定,计算管道φ89×4、管道φ76×4、管道φ57×3.5、管架制作安装、焊缝x光射线探伤、焊缝超声波探伤等六项工程量,并写出计算过程(计算结果均保留一位小数)。编列出该管道系统(注:阀门、法兰安装除外)的分部分项工程量清单项目,将结果填入答题纸表6.Ⅱ.2“分部分项工程量清单表”。

说明:
1.本图所示为某工厂生产装置的部分工艺管道系统,该管道系统工作压力为2.0MPa.图中标注尺寸标高以m计,其他均以mm计。
2.管道均采用20#碳钢无缝钢管,弯头采用成品压制弯头,三通为现场挖眼连接,管道系统的焊接均为氩电联焊。
3.所有法兰为碳钢对焊法兰;阀门型号:止回阀为H41H一25,截止阀为J41H一25,采用对焊法兰连接。
4.管道支架为普通支架,共耗用钢材42.4kg,其中施工损耗为6%。
5.管道系统安装就位后,对φ76×4的管线的焊口进行无损探伤。其中法兰处焊口采用超声波探伤;管道焊缝采用x光射线探伤,片子规格为80mm×l50mm,焊口按36个计。
6.管道安装完毕后,均进行水压试验和空气吹扫。管道、管道支架除锈后,均进行刷防锈漆、调和漆各两遍。
解析:
问题1
表6.Ⅱ.1 单项工程费用汇总表
| 序号 | 项目名称 | 金额(元) |
| 1 | 分部分项工程量清单计价合计 | 6600.00 |
| 2 | 措施项目清单计价合计 | 300.00 |
| 3 | 其他项目清单计价合计 | 18.00 |
| 4 | 规费 | 82.00 |
| 5 | 税金 | 245.00 |
| 合计 | 7245.00 |
各项费用的计算过程(计算式):
1.分部分项工程清单计价合计:
6000+6000×10%×(40%+60%)=6600(万元)
2.措施项目清单计价合计:
脚手架搭拆费=6000×10%×8%+6000×10%×8%×25%×(40%+60%)=48+12=60(万元)
安全防护、文明施工措施费=100×90%=90(万元)
其他措施费=150(万元)
措施项清单计价合计=60+90+150=300(万元)
3.其他项目清单计价合计:
总承包服务费=6000×20%×l0%×l5%=18(万元)
4.规费:82(万元)
5.税金:
(6600+300+18+82) ×3.5%=7000×3.5%=245(万元)
问题2
分部分项工程清单工程量的计算过程:
1.无缝钢管φ89×4安装工程量的计算式:
2+1.1+(2.5-1.6)=4(m)
2.无缝钢管φ76×4安装工程量的计算式:
[0.3+(2-1.3)+1.1+0.6+2.1+(0.3+2-1)×2]+[2.1+(2.8-1.2)×2+0.5 +0.3+0.8+2+(0.6×2)]+[(0.3+0.9+2.8-1.2)×2+2+0.9]=7.4+10.1+8.5= 26(m)
3.元缝钢管φ57×3.5安装工程量的计算式:(0.3+0.2+0.5)+(0.6+0.2)×2=1+1.6=2.6(m)
4.管架制作安装工程量的计算式:42.4÷1.06=40(kg)
5.φ76 ×4管道焊缝X光射线探伤工程量的计算式:
每个焊口的胶片数量:0.076×3.14÷(0.15-0.025×2)=2.39(张),取3张
36个焊口的胶片数量:36× 3=108(张)
6.φ76×4法兰焊缝超声波探伤工程量的计算式:
1+2+2+2+2+4=13(口)

Ⅲ.电气安装工程
某别墅局部照明系统回路如图6.Ⅲ.1和图6.Ⅲ.2所示。
表中数据为该照明工程的相美费用:
| 序号 | 项目名称 | 计量单位 | 安装费(元) | 主材 | |||
| 人工费 | 材料费 | 机械使用费 | 单价(元) | 损耗率(%) | |||
| l | 镀锌钢管暗配DN20 | m | 1.28 | 0.32 | 0.18 | 3.50 | 3 |
| 2 | 照明线路管内穿线BV2.5mm2 | m | 0.23 | 0.18 | 0 | 1.50 | 16 |
| 3 | 暗装接线盒 | 个 | 1.05 | 2.15 | 0 | 3.00 | 2 |
| 4 | 暗装开关盒 | 个 | 1.12 | 1.00 | 0 | 3.00 | 2 |
管理费和利润分别按人工费的65%和35%计。
分部分项工程量清单的统一编码如下:
| 项目编码 | 项目名称 | 项目编码 | 项目名称 |
| 030212001 | 电气配管 | 030204031 | 小电器 |
| 030212003 | 电气配线 | 030213003 | 装饰灯 |
| 030204018 | 配电箱 | 03021300l | 普通吸顶灯及其他灯具 |
| 030204019 | 控制开关 | 030204017 | 控制箱 |
问题
1.根据图示内容和《建设工程工程量清单计价规范》的规定,计算相关工程量和编制分部分项工程量清单。将配管和配线的计算式填入答题纸上的相应位置,并填写答题织表6.Ⅲ.1“分部分项工程量清单表”。
2.假设镀锌钢管DN20暗配和管内穿绝缘导线BV2.5mm2清单工程量分别为30m和80m,依据上述相关费用数据计算以上两个项目的综合单价,并分别填写答题纸表6.Ⅲ.2和表6.Ⅲ.3“分部分项工程量清单综合单价计算表”。
3.依据问题2中计算所得的数据进行综合单价分析,将电气配管(镀锌钢管DN20暗配)和电气配线(管内穿绝缘导线BV2.5mm2)两个项目的综合单价及其组成计算后填写答题纸表6.Ⅲ.4“分部分项工程量清单综合单价分析表”。
(计算过程和结果均保留两位小数。)


解析:
问题l
1.镀锌钢管DN20暗配工程量计算式:
一层:(1.5+3.2-1.6一o.4)+(1+3.2一1.3)+(1+3.2一1.3)+(1+0.1+1.3)+l(1.1+3.2-1.3)+(1.6+3.2-1.3)+2.5=19.9(m)
二层:(1+3.2-1.3)+(1.1+3.2-1.3)+(2.5+3.2-1.3)+2.5=12.8(m)
合计:19.9+12.8=32.7(m)
2.管内穿线BV2.5mm2工程量计算式:
二线:[(1.5+3.2-1.6-0.4)+(1+3.2-1.3)+(1.1+3.2一1.3)+2.5+(1.1+ 3.2-1.3)+2.5]×2=33.2(m)
三线:[(1+3.2-1.3)+(1.6+3.2一1.3)+(1+3.2-1.3)+(2.5+3.2-1.3)]×3 =41.1(m)
四线:(1+0.1+1.3)×4=9.6(m)
合计:33.2+41.1+9.6=83.9(m)
表6.Ⅲ.1 分部分项工程量清单表
工程项目:别墅照明工程
| 序号 | 项目编码 | 项目名称及特征 | 计量单位 | 工程数量 |
| 1 | 03020401800l | 配电箱 照明配电箱m嵌入式安装 |
台 | 1 |
| 2 | 030212001001 | 电气配管 镀锌钢管DN20暗配 包括灯头盒6个、开关盒5个 |
m | 32.7 |
| 3 | 030212003001 | 电气配线 管内穿绝缘导线BV2.5mm2 |
m | 83.9 |
| 4 | 030204031001 | 小电器 单联单控暗开关10A 250V |
个 | 1 |
| 5 | 030204031002 | 小电器 双联单控暗开关10A 250V |
个 | 2 |
| 6 | 030204031003 | 小电器 单联双控暗开关10A 250V |
个 | 2 |
| 7 | 030213008001 | 装饰灯 装饰灯FZS~164 1×100W |
套 | 4 |
| 8 | 030213001001 | 普通吸顶灯及其他灯具 圆球罩灯JXDl—1 1×40w |
套 | 2 |
问题2
表6.Ⅲ.2 分部分项工程量清单综合单价计算表
工程名称:别墅照明工程 计量单位:m
项目编码:030212001001 工程数量:30
项目名称:电气配管 镀锌钢管DN20暗配 综合单价:9.18元
|
序号 |
工程内容 |
单位 |
数量 |
其中(元) |
小计 | ||||
|
人工费 |
材料费 |
机械费 |
管理费 |
利润 | |||||
| 1 | 镀锌钢管DN20暗配 | m | 30 | 38.40 | 9.60 | 5.40 | 24.96 | 13.44 | 91.80 |
| 镀锌钢管DN20 | m | 30.9 | 108.15 | 108.15 | |||||
| 2 | 暗装接线盒 | 个 | 6 | 6.3 | 12.90 | 0 | 4.10 | 2.21 | 25.51 |
| 接线盒 | 个 | 6.12 | 18.36 | 18.36 | |||||
| 3 | 暗装开关盒 | 个 | 5 | 5.60 | 5.00 | 0 | 3.64 | 1.96 | 16.20 |
| 开关盒 | 个 | 5.10 | 15.30 | 15.30 | |||||
| 合计 | 50.30 | 189.31 | 5.40 | 32.70 | 17.61 | 275.32 | |||
| 有主材的,安装费和主材分两行填入。 | |||||||||
表6.Ⅲ.3 分部分项工程量清单综合单价计算表
工程名称:别墅照明工程 计量单位:m
项目编码:030212003001 工程数量:80
项目名称:电气配线 管内穿绝缘导线BV2.5mm2 综合单价:2.44元
|
序号 |
工程内容 |
单位 |
数量 |
其中(元) |
小计 | ||||
|
人工费 |
材料费 |
机械费 |
管理费 |
利润 | |||||
| 1 |
管内穿线BV2.5mm2 | m | 82 | 18.86 | 14.76 | 0 | 12.26 | 6.60 | 52.48 |
| 绝缘导线BV2.5mm2 | m | 95.12 | 142.68 | 142.68 | |||||
| 合计 | 18.86 | 157.44 | 0 | 12.26 | 6.60 | 195.16 | |||
| 有主材的,安装费和主材分两行填入。 | |||||||||
表6.Ⅲ.3中工程内容“管内穿线BV2.5mm2”数量要考虑配电箱导线预留量,即数量为:80+2×(0.6+0.4)=82(m),工程内容“绝缘导线BV2.5mm2”数量为:82×(1+16%)=95.12m.
问题3
表6.Ⅲ.4 分部分项工程量清单综合单价分析表
工程名称:别墅照明工具
| 序号 | 项目编码 | 项目名称 | 工程内容 | 其中(元) | 小计 | ||||
| 人工费 | 材料费 | 机械费 | 管理费 | 利润 | |||||
| 1 | 030212001001 | 电气配管 | 镀锌钢管 DN20暗配 包括接线盒6个、开关盒5个安装、接地 |
1.68 |
5.64 |
0.18 |
1.09 |
0.59 |
9.18 |
| 2 | 030212003001 | 电气配线 | 管内穿绝缘导线BV2.5mm2 | 0.24 |
1.97 |
0 |
0.15 |
0.08 |
2.44 |

扫码了解并领取一造资讯及资料













