复习指导:钢筋工程量计算规则(四)
纵向受拉钢筋的抗震锚固长度LaE应按下列公式计算:
一、二级抗震等级:LaE=1.15La
三级抗震等级:LaE=1.05La
四级抗震等级:LaE=La
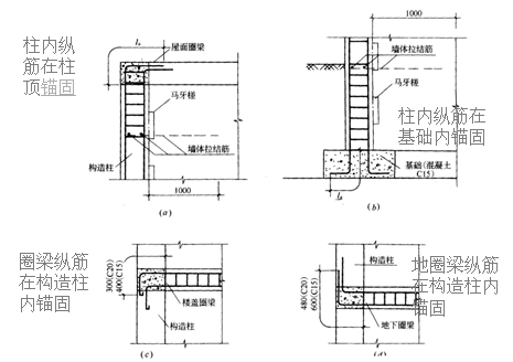
(2)圈梁、构造柱钢筋锚固长度
圈梁、构造柱钢筋锚固长度应按《建筑抗震结构详图》GJBT—465,97G329
(三)(四)有关规定执行,如下图所示。

(四)钢筋计算其他问题
在计算钢筋用量时,还要注意设计图纸未画出以及未明确表示的钢筋,如楼板中双层钢筋的上部负弯矩钢筋的附加分布筋、满堂基础底板的双层钢筋在施工时支撑所用的马凳及钢筋砼墙施工时所用的拉筋等。这些都应按规范要求计算,并入其钢筋用量中。
(五)砼构件钢筋、预埋铁件工程量计算
1、现浇构件钢筋制安工程量:抽筋按理论重量计算。
钢筋工程量=钢筋分规格长×Kg / m×件数。 (0.00617d2=Kg / m,钢筋直径:d—mm);
2、 预制钢筋砼凡是标准图集构件钢筋,可直接查表,其工程量=单件构件钢筋理论重量×件数;而非标准图集构件钢筋计算方法同“1”。
3、预埋铁件工程量
预埋铁件工程量按图示尺寸以理论重量计算。
解(1)计算-10钢板理论重量
M-1:0.4×0.4×78.5㎏/㎡×10=125.60㎏
M-2:0.3×0.4 ×78.5㎏/㎡×10=92.40㎏
M-3:0.3×0.35 ×78.5㎏/㎡×10=82.40㎏
M-4:2×0.1×0.32 ×2×78.5㎏/㎡×10=100.50㎏
M-5:4×0.1×0.36 ×2×78.5㎏/㎡×10=226.10㎏
(2)计算¢ 12、 Φ18 钢筋理论重量
M-1: ¢ 12 钢筋:2×(0.3+0.36×2+12.5×0.012)× 0.888㎏/m×10=20.80㎏
M-2: ¢ 12 钢筋:2×(0.25+0.36×2+12.5×0.012)× 0.888㎏/m×10=19.90㎏
M-3: ¢ 12 钢筋:2×(0.25+0.36×2+12.5×0.012)× 0.888㎏/m×10=19.90㎏
M-4: Φ18 钢筋:2×3×0.38× 2.00㎏/m×10=45.60㎏
M-5: Φ18 钢筋:4×3×0.38×2.00㎏/m×10=91.20㎏
小计:20.80+19.90+19.90+45.60+91.20=197.4 ㎏
合计:627+197.4=824.4 ㎏ 预埋铁件工程量=0.824 t
4、钢筋工程量计算实例
(1)钢筋混凝土现浇板如图所示计算10块板的钢筋工程量
解:① Φ8=(2.7-0.015×2)×[(2.4-0.015×2)÷0.15+1]×0.395 =2.67×13×0.395 =13.71 kg
② Φ8=2.37×19×0.395=17.79 kg
③ Φ12=(0.5+0.1×2)×[(2.67+2.3)×2÷0.2+4 ]×0.888=33.56 kg
④ Φ6.5=(2.67 ×6+2.37 ×6) ×0.26=7.86 kg
小计: Φ10以内:(13.71+17.79+7.86)×10=393.60 kg
Φ10以上:33.56×10=335.60 kg

扫码了解并领取一造资讯及资料













