2007年造价工程师执业资格考试《工程造价案例分析》试题及答案
2007年度全国造价工程师执业资格考试试卷
试题一:(20分)
某工程项目施工承包合同价为3200万元,工期18个月,承包合同规定:
1.发包人在开工前7天应向承包人支付合同价20%的工程预付款。
2.工程预付款自工程开工后的第8个月起分5个月等额抵扣。
3.工程进度款按月结算。工程质量保证金为承包合同价的5%,发包人从承包人每月的工程款中按比例扣留。
4.当分项工程实际完成工程量比清单工程量增加10%以上时,超出部分的相应综合单价调整系数为0.9.
5.规费费率3.5%.以工程量清单中分部分项工程合价为基数计算;税金率3.41%,按规定计算。
在施工过程中,发生以下事件:
(1)工程开工后,发包人要求变更设计。增加一项花岗石墙面工程.由发包人提供花岗石材料,双方商定该项综合单价中的管理费、利润均以人工费与机械费之和为计算基数,管理费率为40%,利润率为14%。消耗量及价格信息资料见下表:

(2)在工程进度至第8个月时,施工单位按计划进度完成了200万元建安工作量,同时还完成了发包人要求增加的一项工作内容。经工程师计量后的该工作工程量为260m2.经发包人批准的综合单价为352元/m2.
(3)施工至第14个月时,承包人向发包人提交了按原综合单价计算的该项月已完工程量结算报告18万元。经工程师计量。其中某分项工程因设计变更实际完成工程数量为580m3(原清单工程数量为360m3,综合单价1200元/m3).
问题:
1.计算该项目工程预付款。
2.编制花岗石墙面工程的工程量清单综合单价分析表,列式计算并把计算结果填入答题纸表1.1中。
3.列式计算第8个月的应付工程款。
4.列式计算第14个月的应付工程款。
(计算结果均保留两位小数,问题3和问题4的计算结果以万元为单位。)
试题二:(20分)
某大型工业项目的主厂房工程,发包人通过公开招标选定了承包人,并依据招标文件和投标文件,与承包人签订了施工舍同。合同中部分内容如下,
(1)合同工期160天,承包人编制的初始网络进度计划,如图2.1所示。

由于施工工艺要求,该计划中C、E、I三项工作施工需使用同一台运输机械;B、D、H三项工作施工需使用同一台吊装机械。上述工作由于施工机械的限制只能按顺序施工.不能同时平行进行。
(2)承包人在投标报价中填报的部分相关内容如下;
①完成A、B、C、D、E、F、G、H、I九项工作的人工工日消耗最分别为:100、400、400、300、200、60、60、90、1000个工日;
②工人的日工资单价为50元/工日,运输机械台班单价为2400元/台班;吊装机械台班单价为1200元/台班;
③分项工程项目和措施项目均采用以直接费为计算基础的工料单价法.其中的间接费费率为18%;利润率为7%;税金按相关规定计算.施工企业所在地为县城。
(3)合同中规定:人员窝工费补偿25元/工日;运输机械折旧费1000元/台班;吊装机械折旧费500元/台班。
在施工过程中,由于设计变更使工作E增加了工程量.作业时间延长了20天,增加用工100个工日,增加材料费2.5万元,增加机械台班20个.相应的措施费增加1.2万元.同时,E、H、I的工人分别属于不同工种,H、I工作分别推迟20天。
问题:
1.对承包人的初始网络进度计划进行调整,以满足施工工艺和施工机械对施工作业顺序的制约要求。
2.调整后的网络进度计划总工期为多少天?关键工作有哪些?
3.按《建筑安装工程费用项目组成》(建标[2003]206号)文件的规定计算该工程的税率。分项列式计算承包商在工作E上可以索赔的直接费、间接费、利润和税金。
4.在因设计变更使工作E增加工程量的事件中,承包商除在工作E上可以索赔的费用外,是否还可以索赔其他费用?如果有可以索赔的其他费用,请分项列式计算可以索赔的费用,如果没有,请说明原因。(计算结果均保留两位小数。)
试题三:(20分)
某承包人参与一项工程的投标,在其投标文件中。基础工程的工期为4个月,报价为1200万元,主体结构工程的工期为12个月。报价为3960万元,该承包人中标并与发包人签订了施工合同。合同中规定,无工程预付款,每月工程款均于下月末支付,提前竣工奖为30万元/月。在最后1个月结算时支付。
签订施工合同后。该承包人拟定了以下两种加快施工进度的措施:
(1)开工前夕,采取一次性技术措施。可使基础工程的工期缩短1个月,需技术措施费用60万元;
(2)主体结构工程施工的前6个月,每月采取经常性技术措施,可使主体结构工程的工期缩短1个月,每月末需技术措施费用8万元。
假定贷款月利率为1%,各分部工程每月完成的工作量相同且能按合同规定收到工程款。

问题:
1.若按原合同工期施工,该承包人基础工程款和主体结构工程款的现值分别为多少?
2.该承包人应采取哪种加快施工进度的技术措施方案使其获得最大收益?
3.画出在基础工程和主体结构工程均采取加快施工进度技术措施情况下的该承包人的现金流量图。
(计算结果均保留两位小数。)
试题四:(20分)
某工程采用公开招标方式,招标人3月1日在指定媒体上发布了招标公告,3月6日至3月12日发售了招标文件,共有A、B、C、D四家投标人购买了招标文件。在招标文件规定的投标截止日(4月5日)前,四家投标人都递交了投标文件。开标时投标人D因其投标文件的签署人没有法定代表人的授权委托书而被招标管理机构宣布为无效投标。
该工程评标委员会于4月15日经评标确定投标人A为中标人,并于4月26 日向中标人和其他投标人分别发出中标通知书和中标结果通知,同时通知了招标人。
发包人与承包人A于5月10 日签订了工程承包合同,合同约定的不含税合同价为6948万元,工期为300天;合同价中的间接费以直接费为计算基数,间接费率为12%,利润率为5%。
在施工过程中,该工程的关键线路上发生了以下几种原因引起的工期延误:
(1)由于发包人原因,设计变更后新增一项工程于7月28日至8月7日施工(新增工程款为160万元);另一分项工程的图纸延误导致承包人于8月27日至9月12日停工。
(2)由于承包人原因,原计划于8月5日晨到场的施工机械直到8月26日晨才到场。
(3)由于天气原因.连续多日高温造成供电紧张。该工程所在地区于8月3日至8月5日停电,另外,该地区于8月24日晨至8月28日晚下了特大暴雨。
在发生上述工期延误事件后,承包人A按合同规定的程序向发包人提出了索赔要求,经双方协商一致。除特大暴雨造成的工期延误之外,对其他应予补偿的工期延误事件,既补偿直接费又补偿间接费,间接费补偿按合同工期每天平均分摊的间接费计算。
问题:
1.指出该工程在招标过程中的不妥之处,并说明理由。
2.谈工程的实际工期延误为多少天?应予批准的工期延长时间为多少天?分别说明每个工期延误事件应批准的延长时间及其原因。
3.图纸延误应予补偿的间接费为多少?
4.该工程所在地市政府规定.高温期间施工企业每日工作时间减少1小时,企业必须给职工每人每天10元高温津贴。若某分项工程的计划工效为1.50平方米/每小时。计划工日单位为50元,高温期间的实际工效降低10%,则高温期间该分项每平方米人工费比原计划增加多少元?
(费用计算结果保留两位小数。)
试题五:(20分)
某企业拟建一条生产线。设计使用同规模标准化设计资料。类似工程的工程费用造价指标见表5.1;类似工程造价指标中主要材料价格表见表5.2.拟建工程当地现行市场价格信息价格及指数见表5.3.



问题:
1.拟建工程与类似工程在外部建设条件有以下不同之处:
(1)拟建工程生产所需粘土原料按外购考虑,不自建粘土矿山;
(2)拟建工程石灰石矿采用2.5km皮带长廊输送,类似工程采用具有同样输送能力的1.5km皮带长廊。
根据上述资料及内容分别计算调整类似工程造价指标中的建筑工程费、设备购置费和安装工程费。
2.类似工程造价指标中建筑工程费用所含的材料费、人工费、机械费、综合税费占建筑工程费用的比例分别为58.64%、14.58%、9.46%、17.32%。
根据已有资料和条件,在答题纸表5.1中计算建筑工程费用中的材料综合调整系数,计算拟建工程建筑工程费用。
3.行业部门测定的拟建工程设备购置费与类拟工程设备购置费相比下降2.91%,拟建工程安装工程费与类似工程安装工程费相比增加8.91%。根据已有资料和条件,计算拟建工程设备购置费、安装工程费和工程费用。
(计算结果均保留两位小数。)
试题六:(40分)
本试题分三个专业(Ⅰ土建工程、Ⅱ工业管道安装工程、Ⅲ电气安装工程),请任选其中一题作答。若选作多题,按所答的第一题(卷面顺序)计分。
Ⅰ.土建工程
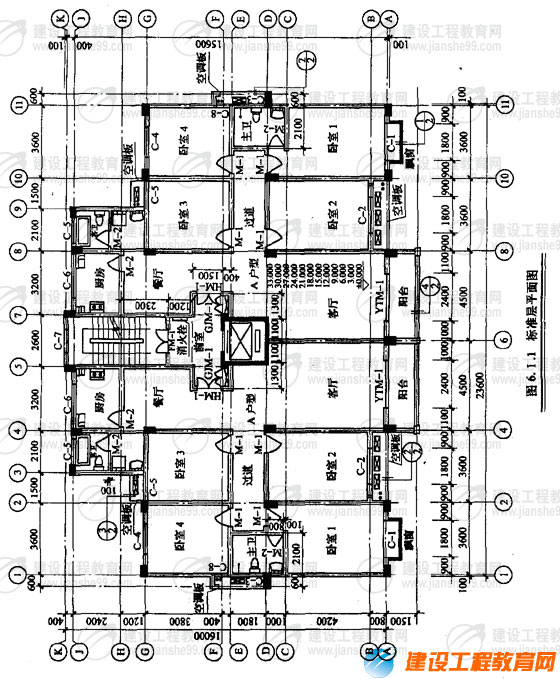
某小高层住宅楼建筑部分设计如图6.I所示,共12层。每层层高均为3米,电梯机房与楼梯间部分凸出屋面。墙体除注明者外均为200mm厚加气混凝土墙.轴线位于墙中。外墙采用50mm厚聚苯板保温。楼面做法为20mm厚水泥砂浆抹面压光。楼层钢筋混凝土板厚100mm,内墙做法为20mm厚混合砂浆抹面压光。为简化计算首层建筑面积按标准层建筑面积计算.阳台为全封闭阳台,⑤和⑦轴上混凝土柱超过墙体宽度部分建筑面积忽略不计,门窗洞口尺寸见表6.I.1,工程做法见表6.I.2.


问题:
1.依据《建筑工程建筑面积计算规范》(GB/T 50353-2005)的规定,计算小高层住宅楼的建筑面积。
将计算过程、计量单位及计算结果填入答题纸表6.I.1“建筑面积计算”。
2.依据《建筑工程工程量清单计价规范》附录B的工程量计算规则,计算小高层住宅楼二层卧室1、卧室2、主卫的楼面工程量以及墙面工程量.将计算过程、计量单位及计算结果按要求填入答题纸表6.I.2“分部分硬工程量计算”。
3.结合图纸及表6.I.2“工程做法”进行分部分项工程量清单的项目特征描述,将描述和分项计量单位填入答题纸表6.I.3“分部分项工程量清单”。
(计算结果均保留两位小数。)


Ⅱ.管道安装工程
1.某住宅区室外热水管网布置如图6.Ⅱ所示。
管网部分分部分项工程量清单项目的统一编码见下表:

2.有一输气管线工程需用Φ11020×6的碳钢板卷管直管,按管道安装设计施工图示直管段净长度(不含阀门、管件等)共5000m,采用埋弧自动焊接。所用钢材均由业主供应标准成卷钢材。某承包商承担了该项板卷管直管的制作工程,板卷管直管制作的工料机单价和相关要求说明如下:

注:1. Φ1020×6的碳钢板卷管直管重量按150kg/m计;
2.按照以下规定:碳钢板卷管安装的损耗率为4%。每制作1t的板卷管直管工程量耗用钢板材料1.05t;钢卷板开卷与平直的施工损耗率为3%;
3.管理费、利润分别按人工费的60%、40%计。
问题:
1.将各项管道和管道支架制作安装清单项目工程量的计算过程,分别写在答题纸相应位置。根据《建设工程工程量清单计价规范》的有关规定,编制如图6.Ⅱ所示管网系统的分部分项工程量清单项目,将结果填入答题纸表6.Ⅱ.1“分部分项工程量清单表”第2、3、4、5栏内。
2.在答题纸相应位置写出答题纸中要求的有关项目的计算过程:
(1) Φ1020×6碳钢板直管制作工程量;
(2)制作碳钢板直管前,需对成卷碳钢板进行开卷与平直的工程量;
(3)发包人所供应标准成卷钢材的数量及其费用;
(4)承包人应该向发包方计取的该项钢板卷管制作分部分项工程量清单费用数额。依据《建设工程工程量清单计价规范》《全国统一安装工程预算定额》的有关的规定,计算出Φ1020×6碳钢板直管制作(清单项目的统一编码为030613001)的分部分项工程量清单综合单价,将相关数据填入答题纸表
6.Ⅱ.2“分部分项工程量清单综合单价计算表”中。
(以上计算结果保留两位小数。)

说明
1.本图所示为某住宅小区室外热水管网平面布置图.该管道系统工作压力为1.0MPa.热水温度为95℃.图中平面尺寸均以相对坐标标注.单位以m计,详图尺寸以mm计。
2.管道敷设管沟(高600mm×宽800mm)内,管道均采用20#碳钢无缝钢管,弯头采用成品冲压弯头、异径管,三通现场挖眼连接,管道系统全部采用手工电弧焊接。
3.闸阀型号为Z41H-1.6,止回阀型号为H41H-1.6.水表采用水平螺翼式法兰连接,管网所用法兰均采用碳钢平焊法兰连接.
4.管道支架为型钢横担.管座采用碳钢板现场制作,Φ325×8管道每7m设一处,每处重量为16kg;Φ159×6管道每6m设一处,每处重量为15kg;Φ108×5管道每5m设一处。每处重量为12kg.其中施工损耗率为6%.
5.管道安装完毕用水进行水压试验和消毒冲洗,之后管道外壁进行除锈,刷红丹防锈漆二遍。外包岩棉管壳(厚度为60mm)作绝热层。外缠铝箔作保护层。
6.管道支架进行除锈后,均刷红丹防锈漆、调和漆各二遍。
Ⅲ.电气安装工程
某氮气站动力安装工程如图6.Ⅲ所示:
1.PD1、PD2均为定型动力配电箱,落地式安装,基础型钢用10#槽钢制作,其重量为10kg/m.
2.PD1至PD2电缆沿桥架敷设-其余电缆均穿钢管敷设.埋地钢管标准高为-0.2m.埋地钢管至动力配电箱出口处高出地坪+0.1m.
3.4台设备基础标高均为+0.3m.至设备电机处的配管管口高出基础面0.2m,均连接1根长0.8m同管径的金属软管。
4.计算电缆长度时不计算电缆敷设弛度、波形弯度和交叉的附加长度,连接电机处,出管口后电缆的预留长度为1m,电缆头为户内干包式,其附加长度不计。
5.电缆桥架(200×100)的水平长度为22m.
6.表中数据为计算该动力安装工程的相关费用:

管理费和利润分别按人工费的55%和45%计。
分部分项工程量清单的统一编码为:

问题:
1.根据图示内容和《建设工程工程量清单计价规范》的规定,计算相关工程量和编制分部分项工程量清单。将配管、电缆敷设和电缆桥架工程量的计算式填入答题纸上的相应位置,并填写答题纸表6.Ⅲ。1
“分部分项工程量清单”。
2.假设电力电统YJV4×16穿管敷设的清单工程量为30m.依据上述相关费用数据计算配电箱(落地式安装)和电力电缆YJV4×16穿管敷设二个项目的综合单价,并分别填入答题纸表6.Ⅲ。2和表6.Ⅲ。3
“分部分项工程量清单综合单价计算表”。
(计算过程和结果均保留两位小数。)

2007年度全国造价工程师执业资格考试试卷标准答案
试题一:(20分)
问题1(2分)
工程预付款:3200×20%=640(万元) (2分)
问题2(9分)
人工费:0.56×60=33.60(元/m2) (1分)
材料费:0.155×0.8+0.0299×240+6.4=13.70(元/m2) (1分)
[或:13.70+1.06×530=575.50(元/m2)]
机械费;0.0052×49.18+0.0969×52=5.29(元/m2) (1分)
管理费:(33.60+5.29)×40%=15.56(元/m2) (1分)
利润: (33.60+5.29)×14%=5.44(元/m2) (1分)
综合单价;33.60+13.70+5.29+15.56+5.44=73.59(元/m2) (1分)
[或:33.60+575.50+5.29+15.56+5.44=635.39(元/m2)]

问题3:(4分)
增加工作的工程款:260×352×(1+3.5%)(1+3.41%)=97953.26(元)=9.80(万元) (1分)
第8月应付工程款:(200+9.80)×(1-5%)-640÷5(2分)=71.31(万元) (1分)
问题4:(5分)
该分项工程增加工程量后的差价。
(580-360×1.1)×1200×(1-0.9)×(1+3.5%)(1+3.41%)(2分)=23632.08(元)=2.36(万元)(1分)
或:该分项工程的工程款应为:
[360×1.1×1200+(580-360×1.1)×1200×0.9]×(1+3.5%)(1+3.41%)=72.13(万元)(1分)
承包商结算报告中该分项工程的工程款为:
580×1200×(1+3.5%)(1+3.41%)=74.49(万元) (1分)
承包商多报的该分项工程的工程款为;74.49-72.13=2.36(万元) (1分)
第14个月应付工程款(180-2.36)×(1-5%)(1分)=168.76(万元) (1分)
试题二:(20分)
问题1:(4分)
对初始网络进度计划进行调整,结果如图2.2所示。

问题2 (3分)
(1)总工期仍为160(天) (1分)
(2)关健工作有A、C、E、I (2分)
(或①-③-⑦-⑨-⒀-⒂)
问题3
谈工程的税金率为:3%(1+5%+3%)/1-3%(1+5%+3%)=3.35% (2分)
[或:1/[1-3%(1+5%+3%)]-1=3.35%]
评分说明:上面税率计算无计算过程式,而计算结果正确得1分
承包在商工作E上可以索赔的费用。
直接费100×50+25000+2400×20+12000=90000(元) (1分)
间接费90000×18%=16200(元) (1分)
利润(90000+16200)×7%=7434(元) (1分)
税金(90000+16200+7434)×3.35%=3806.741元) (1分)
问题4:(7分)
还可以索赔其他费用 (1分)
这些费用包括,
(1)H工作费用索赔
①因为H工作有10天总时差,所以,入员窝工和吊装机械闲置时间为:
20-10=10(天) (1分)
②每天窝工人数为:90/30=3(工日/天) (1分)
③索赔费用为:3×10×25+10×500=5750(元) (1分)
(2)I工作费用索赔:
①入员窝工时间为20天 (1分)
②每天窝工人数为:1000/50=20(工日/天) (1分)
③索赔费用为:20×20×25=10000(元) (1分)
试题三:(20分)
问题1: (5分)
解:基础工程每月工程款A1=1200/4=300(万元) (0.5分)
则,基础工程每月工程款的现值为:。
P V1= A1 (P/A,1%,4)(P/F,1%,1)=300×3.902×0.990=1158.89(万元) (2分)
主体结构工程每月工程款A2=3960/12=330(万元) (0.5分)
则.主体结构工程款的现值为:
P V2= A2(P/A,1%,12)(P/F,1%,5)=330×11.255×0.951=3532.16(万元) (2分)
问题2(11分)
解:该承包商可采用以下三种加快施工进度的技术措施方案:
(1)仅加快基础工程的施工进度。则: (2分)
P V基=400(P/A,1%,3)(P/F,1%,1)+330(P/A,1%,12)(P/F,1%,4)+30(P/F,1%,16)-60
=400×2.941×0.990+330×11.255×0.961+30×0.853-60
=4699.53(万元) (0.5分)
(2)仅加快主体结构工程的施工进度。则:
P V结=300(P/A,1%,4)(P/F,1%,1)+360(P/A,1%,11)(P/F,1%,5)+30(P/F,1%,16)-8(P/A,1%,6)(P/F,1%,4) (1分)
=300×3.902×0.990+360×10.368×0.951+30×0.853-8×5.795×0.961
=4689.52(万元) (1分)
(3)既加快基础工程的施工进度,又加快主体结构工程的施工进度.则: (2分)
P V=400(P/A,1%,3)(P/F,1%,1)+360(P/A,1%,11)(P/F,1%,4)+60(P/F,1%,15)-60-8(P/A,1%,6)(P/F,1%,3) (1分)
=400×2.941×0.990+360×10.368×0.961+60×0.861-60-8×5.795×0.971
=4698.19(万元) (1分)
由计算结果看出,仅加快基础工程施工进度的技术措施方案能获得较大收益。 (2分)
评分说明:
(1)三个方案均考虑到得3分;考虑两个基本方案得1分;仅提出一个方案的.本问题不得分。
(2)各方案如果列式和逻辑不正确.经计算无意选择了正确结果相关部分不得分。
(3)列式正确。但在计算过程中,由于小数点取合问题导致的正常范围内的数据偏差,不扣分。
问题3: (4分)
基础工程和主体结构工程均采取加快施工进度技术措施情况下的现金流量图为:

试题四:(20分)
问题1:(4分)
招标管理机构宣布无效投标不妥(1分),应由招标人宣布(1分)评标委员会确定中标人并发出中标通知书和中标结果通知不妥(1分),应由招标入发出。(1分)
问题2:(8分)
该工程的实际工期延误为47天.(0.5分)应批准的工期延长为32天。(0.5分)其中.新增工程属于业主应承担的责任(0.5分)应批准工期延长11天(7月28日至8月7日),(1分)
图纸延误属于业主应承担的责任(0.5分)应批准延长工期为15天(8月29日至9月12日) (1分)
停电属于业主应承担的责任,(0.5分)应批准工期延长为3天(0.5分)
施工机械延误属于承包商责任(0.5分)不予批准延长工期(0.5分)
特大暴雨造成的工期延误属于业主应承担的风险范围,(0.5分)但8月24~25日属于承包商机械未到场延误在先.不予索赔,(0.5分)应批准工期延长3天(8月26日至8月28日)。(0.5分)
问题3(4分)
解:合同价中的间接费为: 6948×(0.12/1.12×1.05)=708.98(万元) (2分)
或:合同价中的利润为:6948×(0.05/1.05)=330.86(万元)
合同价中的间接费为:(6948-330.86)×(0.12/1.12)=708.98(万元)
所以,合同价中每天的间接费为:708.98/300=2.36(万元/天) (1分)
图纸延误应补偿的间接费为:15×2.36=35.40(万元) (1分)
问题4 (4分)
解:计划的单方人工费为,50÷(8×1.5)=4.17(元/m2) (1分)
实际的单方人工费为:(50+10)÷[7×(1-10%)×1.5]=6.35(元/m2) (2分) 则,单方人工费的增加额为:6.35-4.17=2.18(元/m2) (1分)
试题五:(20分)
问题1(6分)
(1)类似工程建筑工程费调整:
不建粘土矿减125.00(万元) (0.5分)
运矿皮带长廊加长1.0km增加430× 1.0/1.5=286.67(万元) (0.5分)
类似工程建筑工程费调整为:19896-125.00+286.67=20057.67(万元) (1分)
或:430×2.5/1.5=716.67(万元) (0.5分)
19896-125.00-430+716.67=20057.67(万元) (1.5分)
(2)类似工程设备购置费调整:
不建粘土矿减380.00(万元) (0.5分)
运矿皮带长廊加长1.0km增加460×1.0/1.5=306.67(万元) (1.5分)
类似工程设备购置费调整为:22210.00-330.00+306.67=22136.67(万元) (1.5分)
或:460×2.5/1.5=766.67(万元) (0.5分)
22210.00-380.00-460+766.67=22136.67(万元) (0.5分)
(3)类似工程安装工程费调整;
不建粘土矿减12.00(万元) (0.5分)
运矿皮带长廊加长1.0hm增加152×1.0/1.5=101.33(万元) (0.5分)
类似工程安装工程费调整为;6456.00-12.00+101.33=6545.33(万元) (1分)
或:152×2.5/1.5=253.3(万元(0.5分)
6456.00 -12.00-152.00-253.33=6545.33(万元) (1.5分)
问题2
(1)材料价差调整系数计算如下表:

拟建工程建筑工程费用为。
20057.67×(1+58.64%×24.32%+14.58%×43.00%+9.46%×17.50%+17.32%
×3.6%)=24632.76(万元) (3分)
或:20057.67×(0.5864×1.2432+0.1458×1.43+0.0946×1.175+0.1732×1.036)
=20057.67×1.228=24630.82(万元) (3分)
问题3;
拟建工程设备购置费为
22136.67×(1-2.91%)=21492.49(万元) (2分)
拟建工程安装工程费为
6545.33×(1+8.91%)=7128.52(万元) (2分)
拟建工程的工程费用为
24632.76+21492.49+7128.52=53253.77(万元) (1分)
试题六:(40分)
Ⅰ.土建工程
问题1.

问题2:(12分)

问题3:(12分)


Ⅱ.管道安装工程
问题1.
写出下列分部分项清单项日工程量的计算式:
1.管道DN300工程量的计算式:
(940-520)+2×3.5=420+7=427(m) (1.5分)
2.管道DN150工程量的计算式:
(400-305)+1=96(m)
3.管道DN100工程量的计算式:
(528-305+2×2.5)+(528-400-1)+(940-935)×2=228+127+10=365(m) (2分)
4.管道支架制作安装工程量的计算式:
(427÷7×16)+(96÷6×15)+(365÷5×12)=976+240+876=2092(kg) (2分)


问题2.
各有关项目的计算过程;
1.Φ1020×6碳钢板直管制作工程量。
5000×0.15×1.04=780(t)(1.5分)
2.制作碳钢板直管前,需对成卷碳钢板进行开卷与平直的工程量。
780×1.05=819(t) (1分)
3.业主应供应标准成卷板材的数量及其费用。
标准成卷板材的数量: 819×(1+3%)=843.57(t) (1分)
标准成卷板材的费用:843.57×4800=4049136(元) (1分)
4.承包商应向业主计取的该项碳钢板直管制作分部分项工程量清单费用数额;
5320536-4049136=1271400(元) (1分)

1.电气安装工程
问题1
1.钢管Φ25工程量计算:
10+7+(0.2+0.1)×2+(0.2+0.3+0.2)×2=19(m) (2分)
2.钢管Φ40工程量计算:
8+12+(0.2+0.1)×2+(0.2+0.3+0.2)×2=22(m) (2分)
3.电缆YJV4×2.5工程量计算:
10+7+(0.2+0.1)×2+(0.2+0.3+0.2)×2=19(m) (1.5分)
4.电缆YJV4×16工程量计算:
8+12+(0.2+0.1)×2+(0.2+0.3+0.2)×2=22(m) (1.5分)
5.电缆桥架200×100工程量计算:
22+[3-(2+0.1)]×2=23.8(m) (2分)
6.电缆YJV4×50工程量计算:
22+[3-(2+0.1)]×2=23.8(m) (1.5分)


问题2:(20.5分)



备注:在表6.Ⅲ.3中:


扫码了解并领取一造资讯及资料













