关于我们

在线客服

帮助

24小时客服:010-82326699 400-810-5999

建设工程教育网 > 资讯中心 > 建筑图库 > 正文

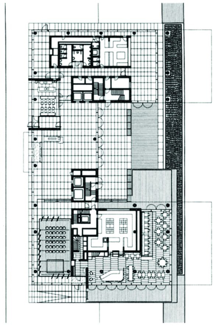
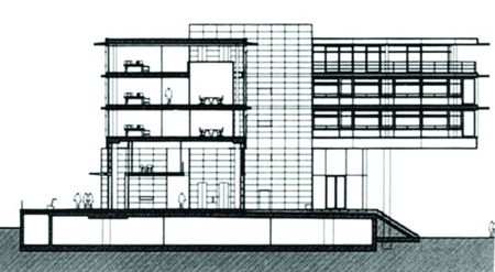
德国北部建筑设计(一)

2008-04-14 13:42    【  【打印】【我要纠错】

延伸阅读:德国 北部 建筑
收藏分享:论坛
分享到:
相关新闻
  • 特色班
    4大班次+2-3套全真模拟题
    提升学习效果
  • 精品班
    4大班次+2-3套全真模拟题+1套预测试题
  • 实验班
    3套全真模拟题+2套预测试题+考前冲关宝典
  • 定制班
    3套模拟题+3套预测题+考前冲关宝典+考前重点
  • 移动班
    以知识点为单元授课练习,
    强化重点、难点、考点
版权声明

  1、凡本网注明“来源:建设工程教育网”的所有作品,版权均属建设工程教育网所有,未经本网授权不得转载、链接、转贴或以其他方式使用;已经本网授权的,应在授权范围内使用,且必须注明“来源:建设工程教育网”。违反上述声明者,本网将追究其法律责任。
  2、本网部分资料为网上搜集转载,均尽力标明作者和出处。对于本网刊载作品涉及版权等问题的,请作者与本网站联系,本网站核实确认后会尽快予以处理。
  本网转载之作品,并不意味着认同该作品的观点或真实性。如其他媒体、网站或个人转载使用,请与著作权人联系,并自负法律责任。
  3、本网站欢迎积极投稿。