全国BIM等级考试第十二期一级试题下载
 
   
        
        
        全国BIM等级考试第十二期考试已经于2018年6月10日圆满结束,根据学员反馈,收集了第十二期一级试题,特分享如下,供广大学员参考学习。根据考试反馈,本次考试难度较大,建议广大考生尽早参加培训学习,准备第十三期考试。加QQ群可享受全国BIM等级考试第十二期一级试题免费下载。第十三期培训课程正在火热招生中,欲购从速! BIM新手报考指南>>
 
 
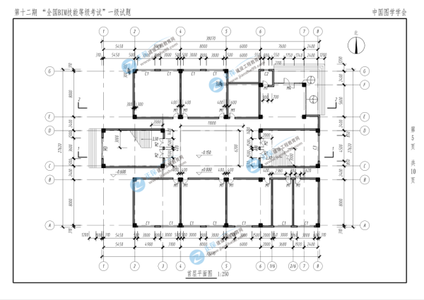
第十二期BIM一级第一题
 
 
第十二期BIM一级第二题
 
 
第十二期BIM一级第三题
 
 
第十二期BIM一级第四题
 
 
第十二期BIM一级第五题
全国BIM等级考试第十二期一级试题下载可加QQ群免费领取。加QQ群领取完整一级试题下载:287657312
| 全国BIM技能等级一级考试 | |||||
| 备考期 | 报名期 | 准考证领取 | 考试时间 | 成绩查询 | 证书查询 | 
| 6月-11月 | 9月-11月 | 考前一周 | 预计12月 | 考后2个月 | 协会官网 | 
| 6个月取证课程 | |||||
| 课程 | 涵盖班次 | 价格 | 购买 | ||
| 全程强化、试题解析、考前点睛 | 1080元 | ||||
| 精品晋升HOT | 全程强化、试题解析、考前点睛、项目实战 | 1580元 | |||
 
   
        
        
        
        
        
        
      报考指南
阅读排行
关注更多
立即扫码添加学习顾问
 
  
       报考指导
      报考指导
    
       考情速递
      考情速递
    
       备考计划
      备考计划
    
       帮你选课
      帮你选课
    
 
           
       
				 
							

 010-82326699
010-82326699
		 
            

 
    




 
   苏公网安备32128202000920号
苏公网安备32128202000920号 扫码添加顾问老师
扫码添加顾问老师
			 扫一扫下载建设
扫一扫下载建设