手机学习
建设工程教育网

APP学习更便捷

建设工程教育网

微信公众号

010-82333888
当前位置:建设工程教育网 > BIM > 试题中心 > 历年试题 > 正文

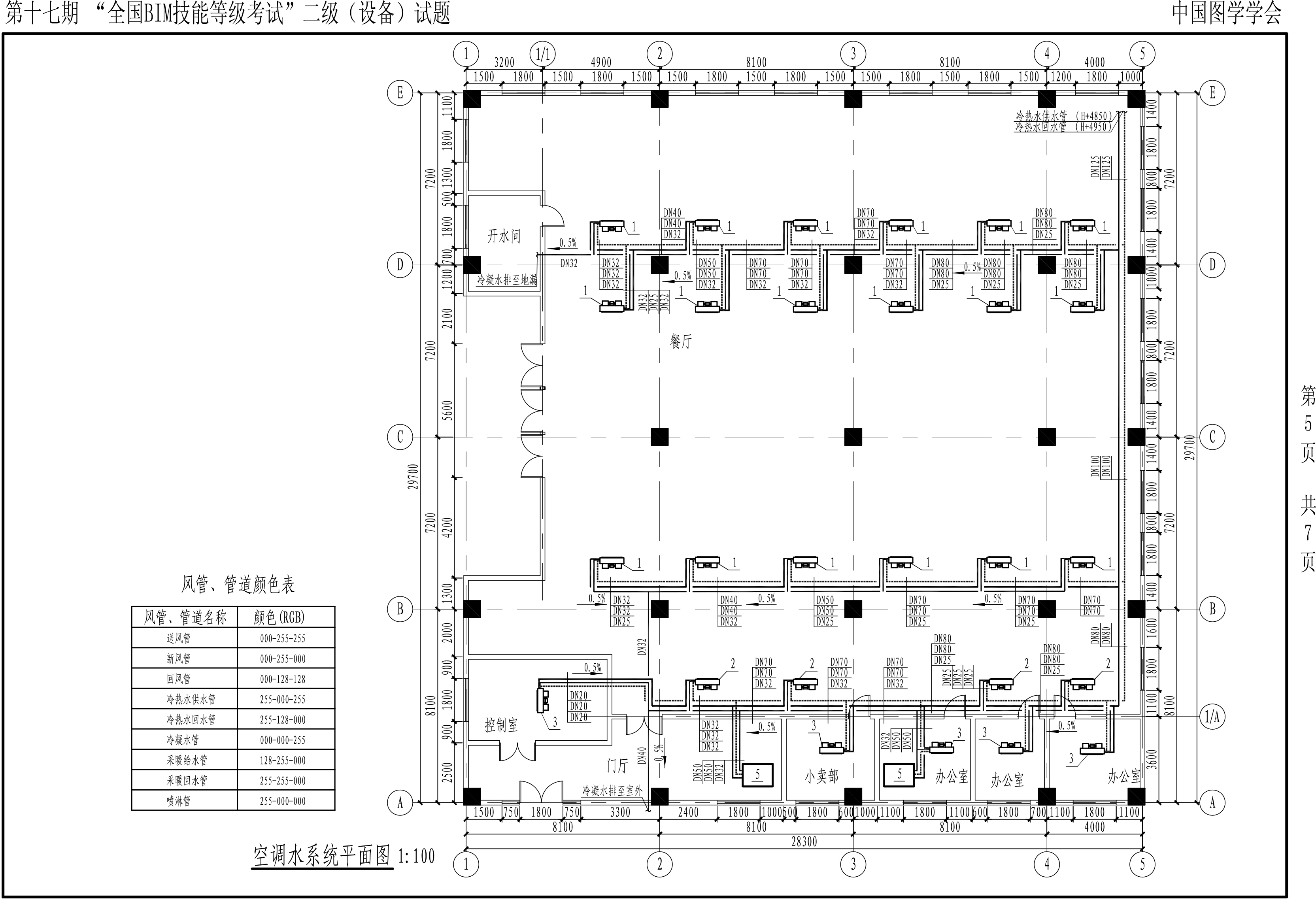
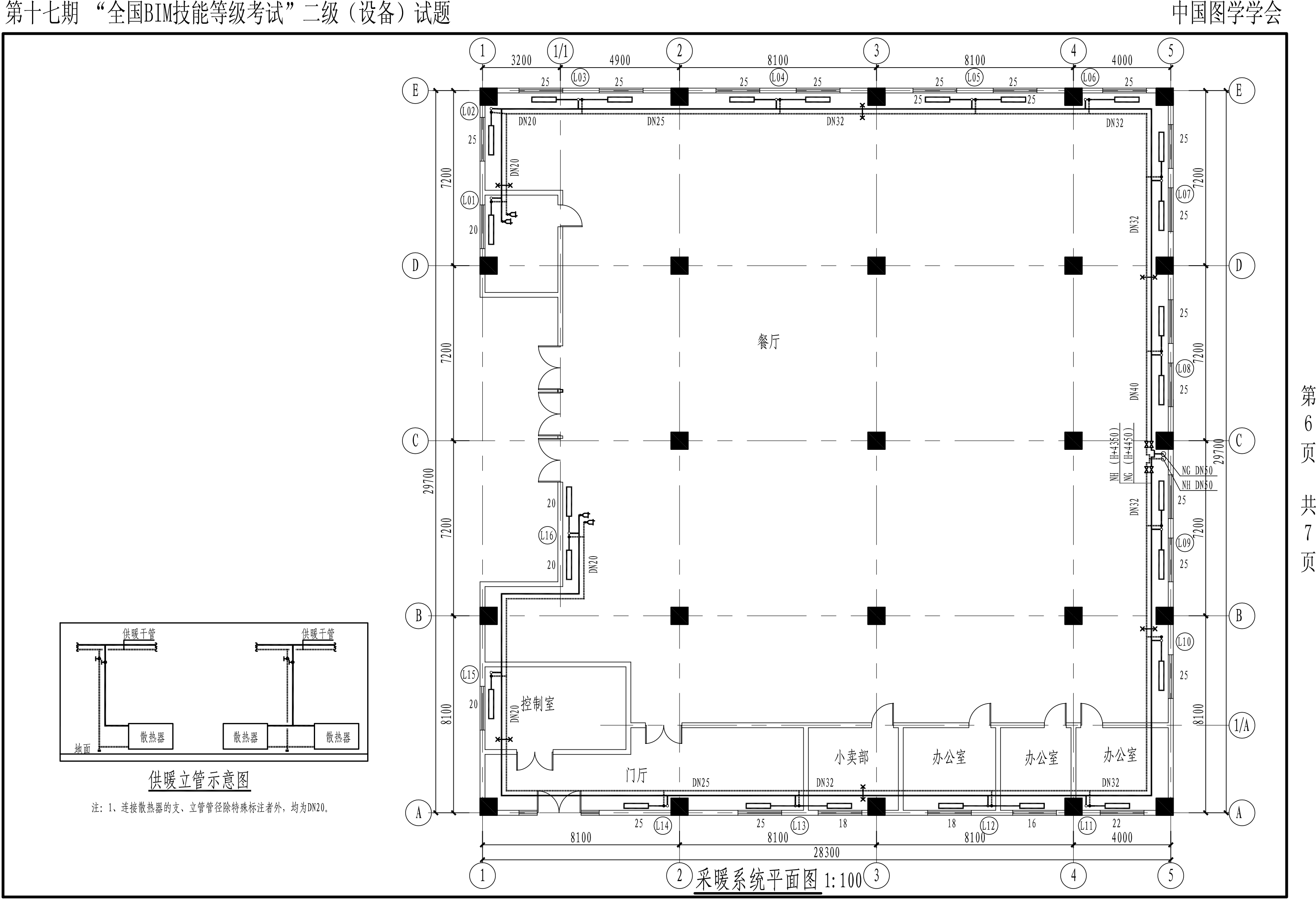
2021年全国BIM等级考试BIM二级(设备)试题

2021-08-30 10:02   来源:建设工程教育网 字体: 打印 收藏

2021年下半年BIM考试时间为12月11、12日,考试即将来临,小编整理了往期BIM试题,快来看一看!

全国BIM技能等级考试BIM二级(设备)试题:第四题

【2021年6月】第十七期BIM-二级设备-4

【2021年6月】第十七期BIM-二级设备-5

【2021年6月】第十七期BIM-二级设备-6

【2021年6月】第十七期BIM-二级设备-7

点击查看更多历年试题>>

报考指南

BIM_报考指南
  • 报 名 时 间

    上半年3-6月

  • 准考证打印

    考前一周左右

  • 考 试 时 间

    上半年6月22、23日

  • 考 试 成 绩

    考后三个月左右公布

  • 合格证领取

    查分后2-3个月公布

阅读排行

BIM课程
  • 免费试听
  • 免费题库
闫老师 BIM一级 教材精讲班 免费试听

关注更多

立即扫码添加学习顾问

报考指导

考情速递

备考计划

帮你选课

网站地图
回到顶部
折叠