手机学习
建设工程教育网

APP学习更便捷

建设工程教育网

微信公众号

010-82333888
当前位置:建设工程教育网 > BIM > 试题中心 > 历年试题 > 正文

2021年BIM一级试题第十七期

2021-09-01 09:31   来源:建设工程教育网 字体: 打印 收藏

2021年下半年BIM考试时间为12月11、12日,各位考生都在安心备考吗?往年的试题做了吗?小编整理了第十七期BIM一级试题,快来看一看~

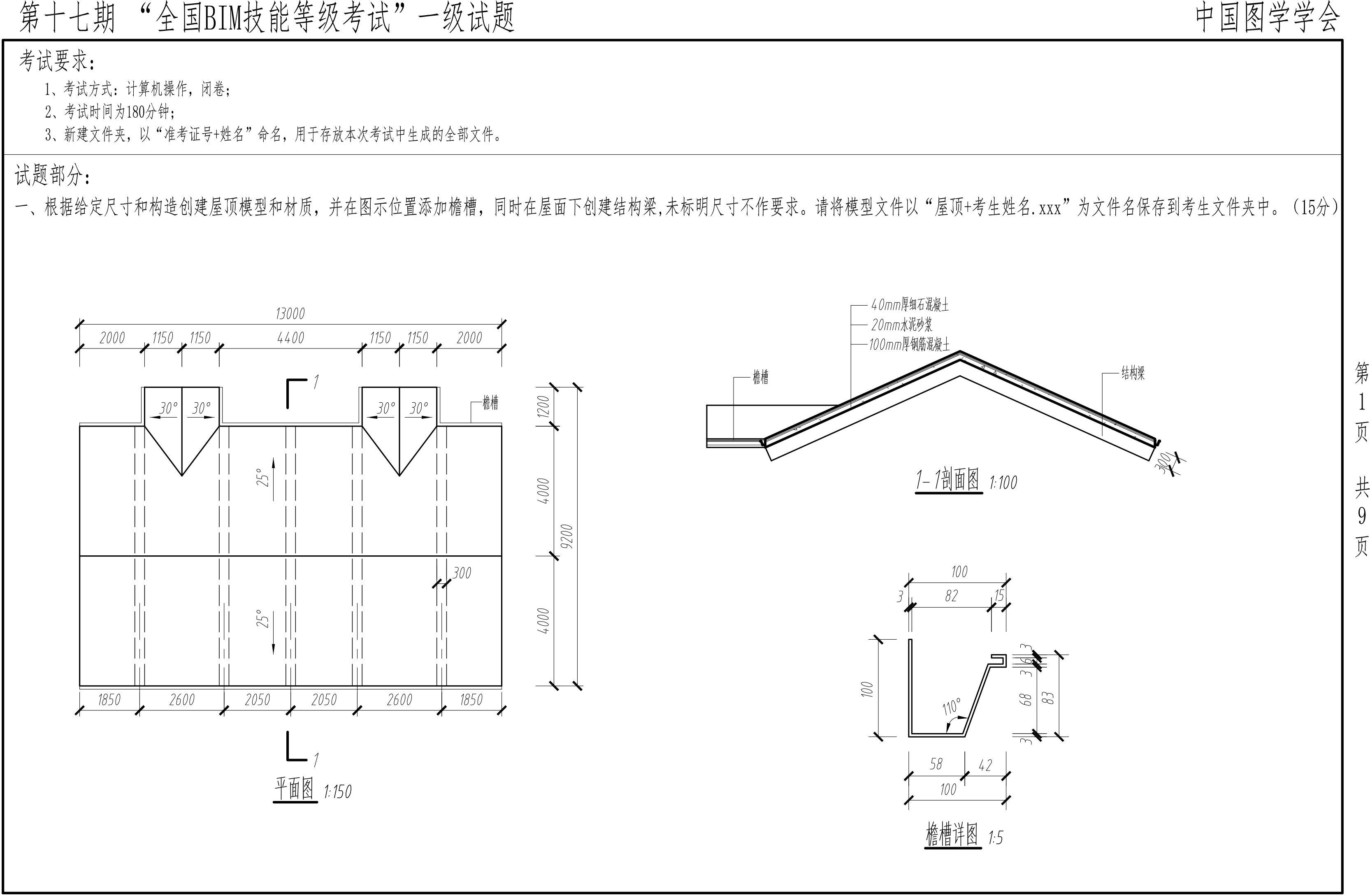
【2021年6月】第十七期BIM-一级-1

【2021年6月】第十七期BIM-一级-2

【2021年6月】第十七期BIM-一级-3

【2021年6月】第十七期BIM-一级-4


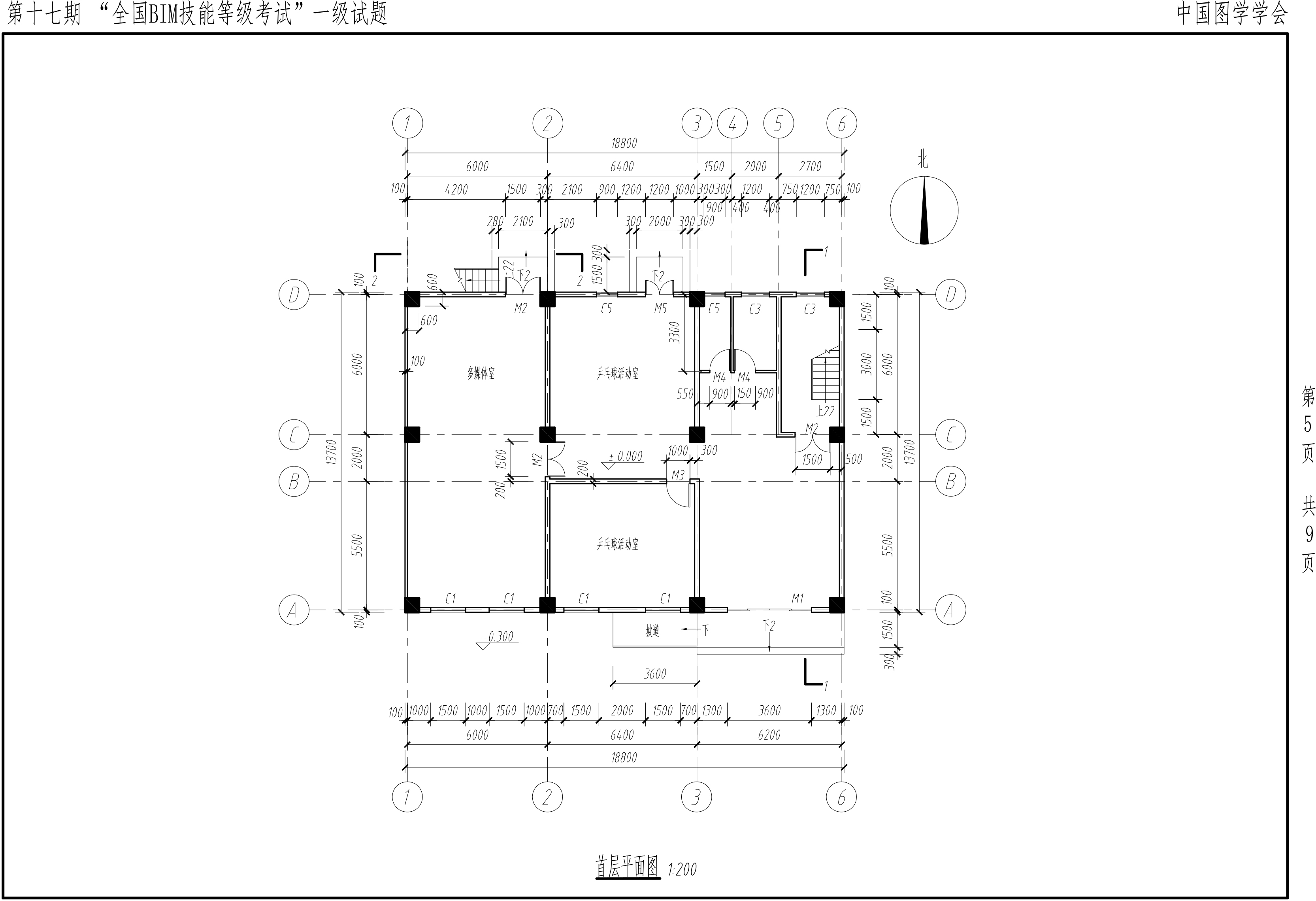
【2021年6月】第十七期BIM-一级-5

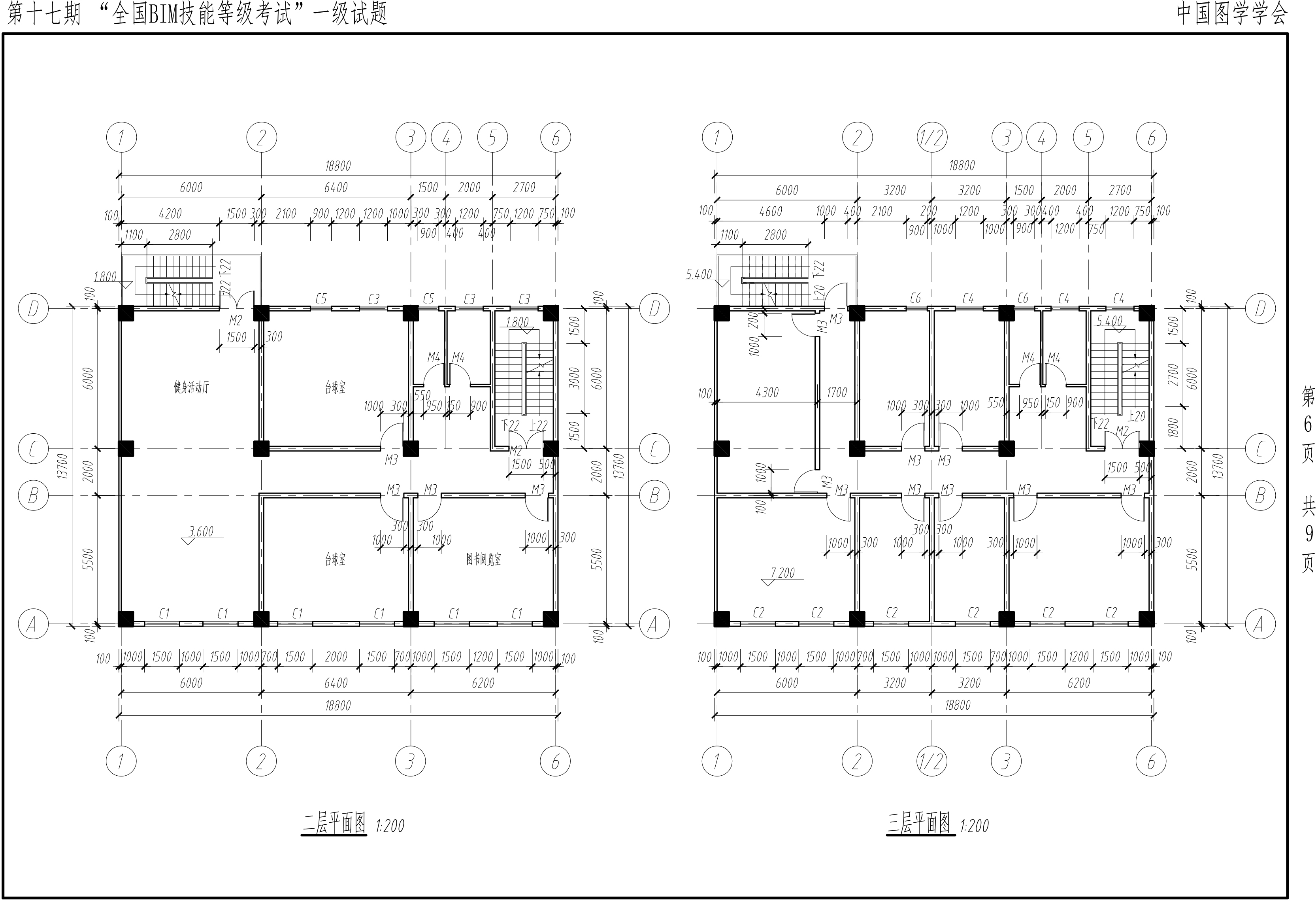
【2021年6月】第十七期BIM-一级-6

【2021年6月】第十七期BIM-一级-7

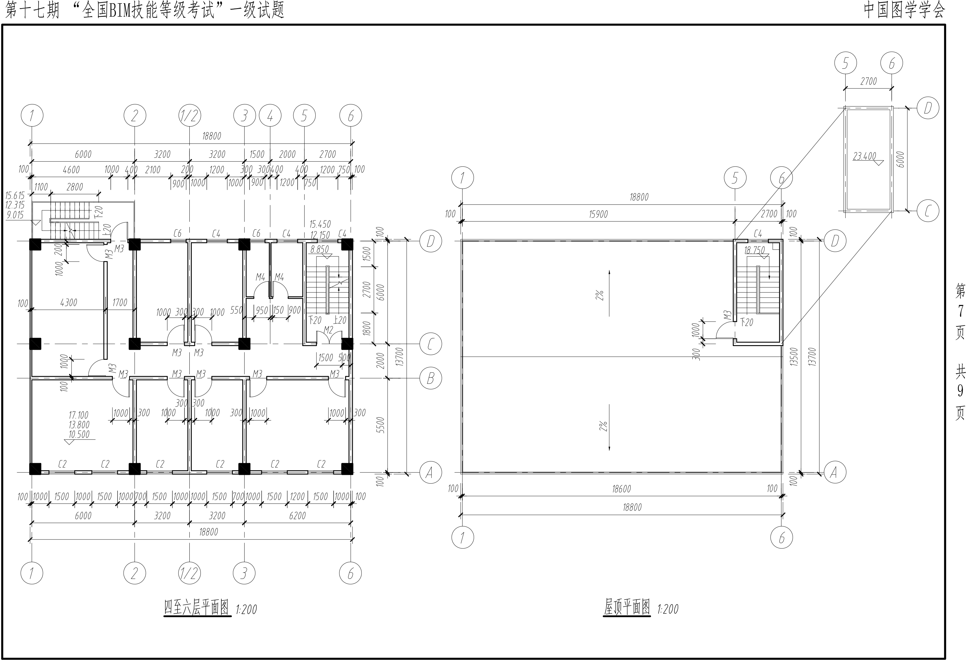
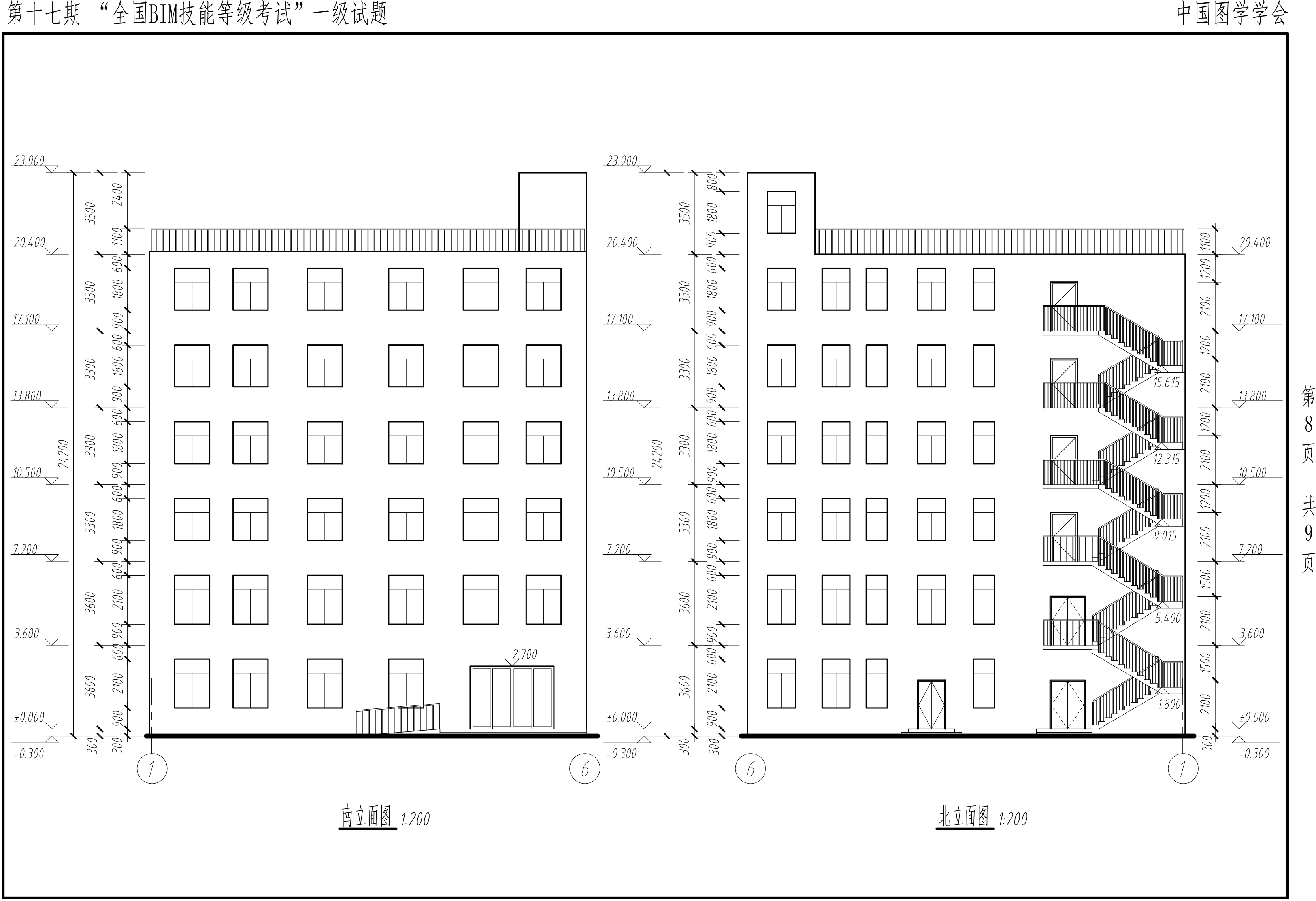
【2021年6月】第十七期BIM-一级-8

【2021年6月】第十七期BIM-一级-9

报考指南

BIM_报考指南
  • 报 名 时 间

    上半年3-6月

  • 准考证打印

    考前一周左右

  • 考 试 时 间

    上半年6月22、23日

  • 考 试 成 绩

    考后三个月左右公布

  • 合格证领取

    查分后2-3个月公布

阅读排行

BIM课程
  • 免费试听
  • 免费题库
闫老师 BIM一级 教材精讲班 免费试听

关注更多

立即扫码添加学习顾问

报考指导

考情速递

备考计划

帮你选课

网站地图
回到顶部
折叠